Agréable appartement 2ch avec garage à Blegny

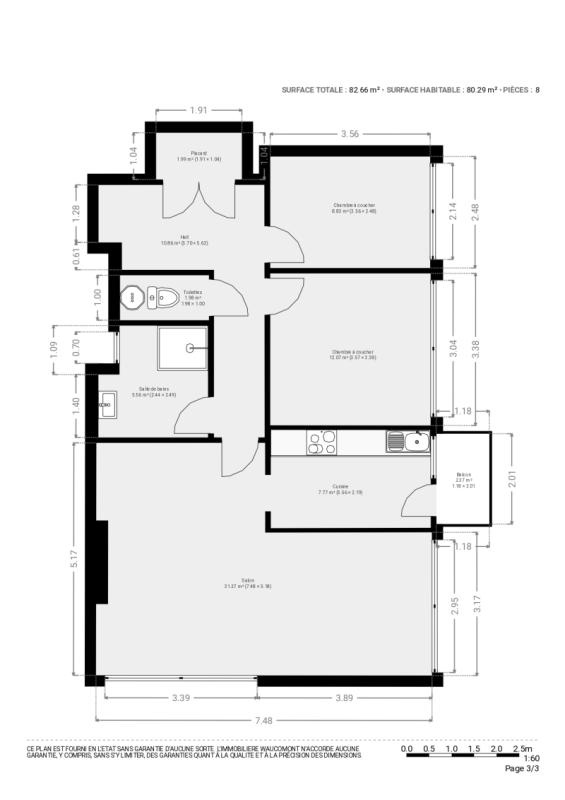
Agréable appartement (+/- 97 m² d'après PEB) 2 chambres, balcon et garage privatif idéalement situé au 2ème et dernier étage d'une résidence au centre de Blegny et de toutes ses commodités. Cet appartement se compose comme suit : hall d'entrée avec toilette indépendante et vestibule, lumineux séjour (+/- 31 m²), cuisine équipée (taque électrique, four, hotte, frigo, lave-vaisselle, évier), 2 chambres (+/- 9 et 12 m²), salle de douches (douche à l’italienne, lavabo). Cet appartement dispose également d’un garage privatif, d'un balcon, d'une cave commune et d'un jardin commun. PEB : C, E spéc: 188.kWh/m².an, E totale : 18.217 kWh/an, n°20250526014715. Châssis double vitrage PVC avec volets électriques en partie, chauffage central mazout (avec calorimètre), 2 climatiseurs réversibles, parlophone, électricité conforme, compteurs eau et électricité séparés ! R.C : 619 €. Charges communes : +/- 220€/mois (qui comprend honoraires syndic, jardinier, fond de réserve, provision pour le chauffage, ...). Belle situation au centre de Blegny ! Idéal pour investissement ou premier achat ! Informations données à titre indicatif et non contractuelles. www.waucomont.be

Classe énergétique Énergie spécifique Énergie totale Émission de CO2 PEB No.
C 188kWh/m².an 18217kWh.an 47kg CO2/an 20250526014715

Informations générales

  • Type de bien Appartements
  • Sous-catégorie Appartement
  • Disponibilité À l'acte
  • Etat Bon
  • Année de construction 1968
  • Nombre d'étages 2
  • Nombre de façades 2

Informations sur l'extérieur

  • Garage 1

Informations sur l'intérieur

  • Surface habitable 97,00 m²
  • Cuisine Oui
  • Type de cuisine Equipée
  • Nombre de chambres 2
  • Salle de douche 1
  • Type d'énergie du chauffage Mazout

Informations financières

  • Revenu cadastral 619,00 €