Agréable appartement dans le centre de Visé

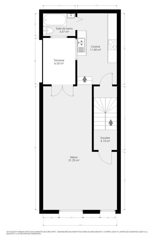
Idéalement situé dans le centre de Visé, agréable et spacieux appartement triplex (+/- 131 m² d'après PEB) 2 chambres et une belle terrasse. Cet appartement se compose comme suit : Sous-sol : cave. Rez-de-chaussée : hall d’entrée. 1er étage : lumineux et spacieux séjour (+/- 31m²), cuisine semi-équipée (cuisinière comprenant une taque vitrocéramique et un four, lave-vaisselle, hotte, évier), salles de bains ( baignoire, lavabo, wc) et une belle terrasse en bois (+/- 6m²). 2ème étage : hall de nuit, 2 chambres dont une mansardée (+/- 12 et 18m²). Chauffage central au gaz de ville, châssis double vitrage en bois. PEB : E, E Spéc: 402 kWh/m².an, E totale : 52.717 kWh/an, n° 20230806005533. R.C. : 655€. Appartement très agréable et situation idéale à proximité des commodités ! Occasion à ne pas manquer ! Informations données à titre indicatif et non contractuelles.www.waucomont.be

Classe énergétique Énergie spécifique Énergie totale Émission de CO2 PEB No.
E 402kWh/m².an 52717kWh.an 73kg CO2/an 20230806005533

Informations générales

  • Type de bien Appartements
  • Sous-catégorie Triplex
  • Disponibilité À l'acte
  • Etat Bon
  • Nombre d'étages 0
  • Nombre de façades 2

Informations sur l'extérieur

  • Terrasse 1
  • Surface terrasse 1 6 m²

Informations sur l'intérieur

  • Surface habitable 131,00 m²
  • Cuisine Oui
  • Type de cuisine Aménagée
  • Nombre de chambres 2
  • Nombre de salle de bain 1
  • Type d'énergie du chauffage Gaz

Informations financières

  • Revenu cadastral 655,00 €