Agréable loft rénové avec goût à Jupille-sur-Meuse

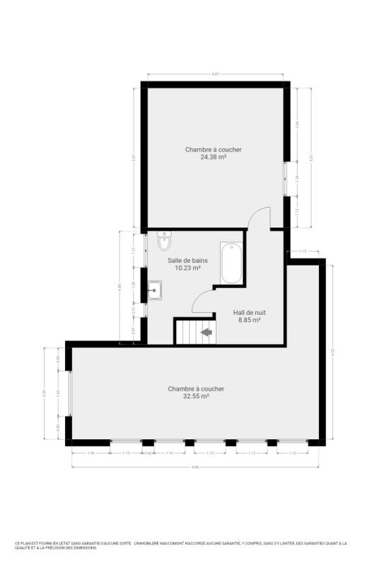
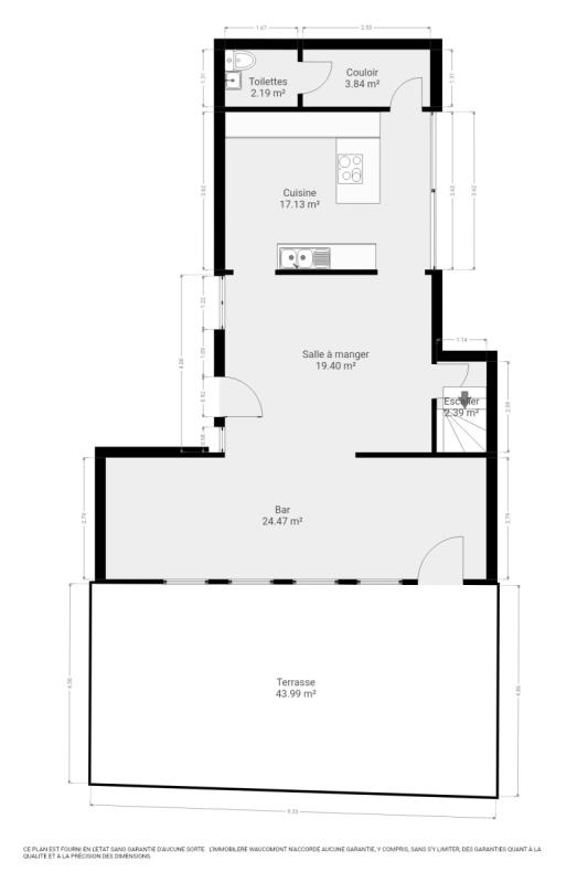
Agréable loft rénové avec goût idéalement situé dans le fond d’une impasse dans un endroit calme à Jupille-sur-Meuse (+/- 261m² d'après PEB) 3 chambres (possibilité 4) et une grande terrasse (+/- 44m²). Il se compose comme suit : Sous-sol : caves. Rez-de-chaussée : lumineux et spacieux séjour (+/- 43m²) avec un poêle à bois et un coin bar, cuisine équipée (taque à induction, lave-vaisselle, four, micro-ondes, frigo, petit congélateur, hotte, évier), débarras, toilette indépendante et une grande terrasse (+/- 44m²). 1er étage : hall de nuit, 2 grandes chambres (+/- 24 et 32m²) et une salle de bains (baignoire, lavabo, wc). 2ème étage : hall de nuit, 1 chambre (+/- 23m²), salle de douches (douche italienne, lavabo, wc) et un débarras. 3ème étage : mezzanine (+/- 12m²) et un grenier de rangement (26m²) (éventuellement aménageable en chambre). Chauffage central au gaz de ville, châssis simple et double vitrage bois, poêle à bois. PEB : E, E Spéc: 350 kWh/m².an, E totale : 91.384kWh/an, n° 20200827006750. R.C. : 617€, Superficie totale (terrain): 153m². Bien de caractère ! Opportunité à saisir ! Informations données à titre indicatif et non contractuelles.www.waucomont.be
Classe énergétique Énergie spécifique Énergie totale Émission de CO2 PEB No.
E 350kWh/m².an 91384kWh.an 64kg CO2/an 20200827006750

Informations générales

  • Type de bien Appartements
  • Sous-catégorie Loft
  • Disponibilité À l'acte
  • Etat Bon
  • Nombre d'étages 0
  • Nombre de façades 2

Informations sur l'extérieur

  • Surface parcellaire 153,00 m²
  • Terrasse 1
  • Surface terrasse 1 44 m²

Informations sur l'intérieur

  • Surface habitable 261,00 m²
  • Cuisine Oui
  • Type de cuisine Equipée
  • Nombre de chambres 3
  • Type d'énergie du chauffage Gaz

Informations financières

  • Revenu cadastral 617,00 €