Appartement 1 ch. + 2 parkings

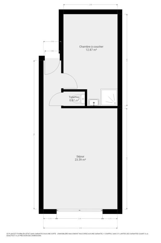
Appartement neuf 1 chambre à parachever (+/- 53m² d'après PEB) avec 2 emplacements de parking idéalement situé au 1er étage d'un immeuble proche du centre de Micheroux. Il se compose comme suit: séjour (+/- 23m²) avec espace cuisine (à placer), 1 chambre (+/- 12m²) avec un emplacement pour une douche (à placer) buanderie et 1 toilette indépendante. Châssis double vitrage PVC, chauffage central au gaz, compteurs individuels,... L'appartement dispose de 2 emplacements de stationnement. Le montant du revenu cadastral n'a pas encore été déterminé. Cette vente est soumise au régime des droits d'enregistrements. PEB: B, Espec: 142 kWh/m².an, E totale: 7.464 kWh/an, n°20230831505396. Informations données à titre indicatif et non contractuelles. A découvrir! Idéal pour investissement ou 1er achat!! www.waucomont.be
Classe énergétique Énergie spécifique Énergie totale Émission de CO2 PEB No.
B 142kWh/m².an 7464kWh.an 26kg CO2/an 20230831505396

Informations générales

  • Type de bien Appartements
  • Sous-catégorie Appartement
  • Disponibilité À l'acte
  • Etat Bon
  • Nombre d'étages 0
  • Nombre de façades 3

Informations sur l'extérieur

  • Parking 2

Informations sur l'intérieur

  • Surface habitable 53,00 m²
  • Cuisine Non
  • Type de cuisine Sans
  • Nombre de chambres 1
  • Type d'énergie du chauffage Gaz