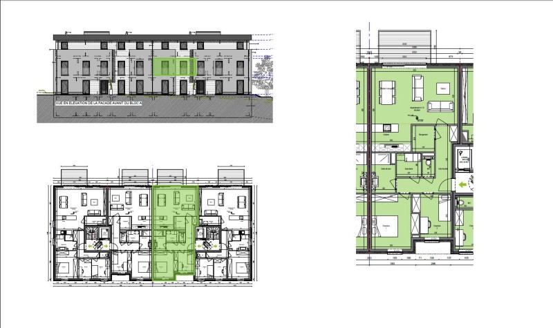
Appartement 2 ch, terrasse, cave et parking

Au 1er étage d’une résidence située dans un clos paisible à Rocourt, appartement 2 chambres (+/- 92m² de surface brute d’après plans) composé d'un hall d'entrée avec espace vestiaire et toilette indépendante, d'un séjour avec cuisine ouverte et accès direct vers la terrasse, salle de douches et 2 chambres. L’appartement est prêt à vivre (peintures comprises) avec des équipements de qualité (carrelages, faïences, sanitaires, menuiseries intérieures, cuisine équipée, vidéo-parlophone) et techniques performantes : optimisation énergétique et acoustique, châssis PVC double vitrage, ventilation simple flux, compteurs séparés et chaudière gaz individuelle. Emplacement de parking intérieur et cave compris dans le prix. PEB : A, E spéc: 59 kWh/m².an, E totale : 5.426 kWh/an, n° 220241204501815. Prix hors frais (TVA 21%, frais de géomètre, honoraires notariaux et frais d'acte de base). Localisation idéale ! Cadre de vie pratique, confortable et agréable au quotidien ! Plus d'informations disponibles sur demande à info@waucomont.be. Informations données à titre indicatif et non contractuelles. www.waucomont.be
Classe énergétique Énergie spécifique Énergie totale Émission de CO2 PEB No.
A 59kWh/m².an 5426kWh.an 11kg CO2/an 20241204501815

Informations générales

  • Type de bien Appartements
  • Sous-catégorie Appartement
  • Disponibilité À l'acte
  • Etat Excellent
  • Nombre d'étages 2
  • Nombre de façades 2

Informations sur l'extérieur

  • Parking 1
  • Terrasse 1
  • Surface terrasse 1 10 m²

Informations sur l'intérieur

  • Surface habitable 92,00 m²
  • Cuisine Oui
  • Type de cuisine Equipée
  • Nombre de chambres 2
  • Salle de douche 1
  • Type d'énergie du chauffage Gaz