Appartement 2 chambres au 1er étage

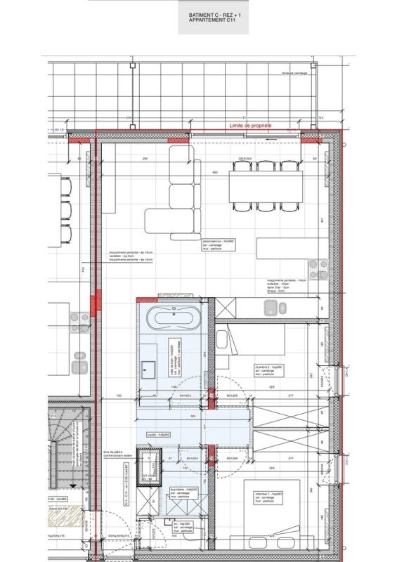
Situé au 1er étage, l'appartement C11 (81,22 m² de superficie habitable d'après acte de base) est composé d'un hall d'entrée avec buanderie et wc indépendant, d'un séjour avec cuisine ouverte ( frigo avec tiroirs congélateurs, lave vaisselle, taque vitrocéramique, hotte et four) profitant d'un accès direct vers une spacieuse terrasse (+/- 10 m²). Hall de nuit desservant 2 chambres et une salle de bains (baignoire et meuble évier). Cave en sous-sol (+/- 7,5 m²) et parking extérieur inclus dans le prix. Chauffage central au gaz (chaudière à condensation individuelle), ventilation simple flux, châssis PVC double vitrage, compteurs séparés (gaz, électricité et eau). Appartement actuellement loué 950€/mois hors charges. PEB: B; E. spec.: 85 kWh/m².an, E. totale: 9 886 kWh/an, n°20241125501741. R.C. non attribué. Prix hors frais (TVA 21%, honoraires notariaux, frais d'acte de base et de raccordements). Informations données à titre indicatif et non contractuelles. Idéal pour investisseurs! www.waucomont.be

Classe énergétique Énergie spécifique Énergie totale Émission de CO2 PEB No.
A 85kWh/m².an 9886kWh.an 16kg CO2/an 20241125501741

Informations générales

  • Type de bien Appartements
  • Sous-catégorie Appartement
  • Disponibilité Date à convenir
  • Etat Excellent
  • Année de construction 2024
  • Nombre d'étages 2
  • Nombre de façades 3

Informations sur l'extérieur

  • Surface parcellaire 91,00 m²
  • Parking 1
  • Terrasse 1
  • Surface terrasse 1 10 m²

Informations sur l'intérieur

  • Surface habitable 81,00 m²
  • Cuisine Oui
  • Type de cuisine Aménagée
  • Nombre de chambres 2
  • Nombre de salle de bain 1
  • Type d'énergie du chauffage Gaz