Appartement 2 chambres et terrasse

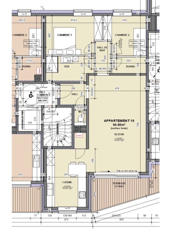
TVA 6% (sous conditions)! Situé au 4ème étage, l'appartement "W19" (+/- 94 m² bruts selon plan) est composé d'un hall d'entrée avec wc indépendant, d'un lumineux séjour avec espace cuisine ouvert et accès direct à une terrasse privative de +/- 8m² orientée Ouest, un hall de nuit distribuant une salle de douches, 2 chambres et buanderie. Nombreux parkings intérieurs et extérieurs disponibles ainsi que des caves individuelles. Isolé aux normes actuelles, thermiques et acoustiques, le bâtiment vous offre un confort optimal et une économie d'énergie. Les appartements sont vendus achevés (hors peinture et luminaire). Les cuisines de qualité sont équipées et comprises dans le prix de vente. Chaudière à condensation au gaz de ville et compteurs séparés (eau, gaz et électricité). Référence PEB: RWPEB-096916. Prix hors frais (TVA, frais de raccordement, honoraires notariaux et frais d'acte de base). N'hésitez pas à nous contacter pour fixer une visite ! Plus d'informations disponibles sur demande à info@waucomont.be. Informations données à titre indicatif et non contractuelles. www.waucomont.be
Classe énergétique Énergie spécifique Énergie totale Émission de CO2 PEB No.
A 61kWh/m².an 5778kWh.an 11kg CO2/an 20250508561812

Informations générales

  • Type de bien Appartements
  • Sous-catégorie Appartement
  • Disponibilité À l'acte
  • Etat Excellent
  • Année de construction 2024
  • Nombre d'étages 6
  • Nombre de façades 2

Informations sur l'extérieur

  • Surface parcellaire 103,00 m²
  • Terrasse 1
  • Surface terrasse 1 8 m²

Informations sur l'intérieur

  • Surface habitable 95,00 m²
  • Cuisine Oui
  • Type de cuisine Equipée et aménagée
  • Nombre de chambres 2
  • Nombre de salle de bain 1
  • Type d'énergie du chauffage Gaz