Appartement 2ch, terrasse, jardin, cave et parking

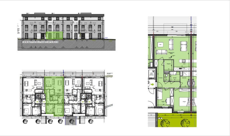
Au rez-de-chaussée d’une résidence située dans un clos paisible à Rocourt, appartement 2 chambres (+/- 92m² de surface brute d’après plans) composé d'un hall d'entrée avec espace vestiaire et toilette indépendante, d'un séjour avec cuisine ouverte et accès direct vers la terrasse et jardin, salle de douches et 2 chambres. L’appartement est prêt à vivre (peintures comprises) avec des équipements de qualité (carrelages, faïences, sanitaires, menuiseries intérieures, cuisine équipée, vidéo-parlophone) et techniques performantes : optimisation énergétique et acoustique, châssis PVC double vitrage, ventilation simple flux, compteurs séparés et chaudière gaz individuelle. Emplacement de parking intérieur et cave compris dans le prix. PEB : A, E spéc: 77 kWh/m².an, E totale : 7.092 kWh/an, n°20241204502647. Prix hors frais (TVA 21%, frais de géomètre, honoraires notariaux et frais d'acte de base). Localisation idéale ! Cadre de vie pratique, confortable et agréable au quotidien ! Plus d'informations disponibles sur demande à info@waucomont.be. Informations données à titre indicatif et non contractuelles. www.waucomont.be
Classe énergétique Énergie spécifique Énergie totale Émission de CO2 PEB No.
A 77kWh/m².an 7092kWh.an 15kg CO2/an 20241204502647

Informations générales

  • Type de bien Appartements
  • Sous-catégorie Appartement
  • Disponibilité À l'acte
  • Etat Excellent
  • Nombre d'étages 2
  • Nombre de façades 2

Informations sur l'extérieur

  • Parking 1
  • Terrasse 1
  • Surface terrasse 1 23 m²

Informations sur l'intérieur

  • Surface habitable 92,00 m²
  • Cuisine Oui
  • Type de cuisine Aménagée
  • Nombre de chambres 2
  • Salle de douche 1
  • Type d'énergie du chauffage Gaz