Appartement 3 chambres, terrasse, parking

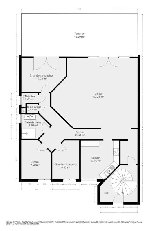
Spacieux appartement (+/- 148 m²) au 1er étage d'un petit immeuble comprenant un rez commercial et un seul logement idéalement situé au centre de Roclenge et se composant comme suit: hall d'entrée (pièce rangement) avec escaliers menant à l'étage. 1er étage: Hall de nuit, spacieux séjour (+/- 50 m²) avec accès à une agréable terrasse (+/- 45 m²), cuisine équipée (four, taque vitro-céramique, hotte, lave-vaisselle, frigo), hall de nuit, 3 chambres (+/- 9, 10, 12 m²) dont la plus grande à accès à la terrasse, salle de douches (douche à l'italienne, lavabo), toilette indépendante, coin buanderie. Chauffage central mazout (chaudière commune et calorimètres) châssis double vitrage bois, spacieux parking, pas de charges communes. R.C.: 1.020 €. PEB: D, E spec: 290 kWh/m².an, E totale: 50 553 kWh/an, n° 20250908002407. Informations et plans éventuels donnés à titre indicatif et non contractuel. Belle situation! www.waucomont.be
Classe énergétique Énergie spécifique Énergie totale Émission de CO2 PEB No.
D 290kWh/m².an 50553kWh.an 72kg CO2/an 20250908002407

Informations générales

  • Type de bien Appartements
  • Sous-catégorie Appartement
  • Disponibilité Date à convenir
  • Etat Bon
  • Nombre d'étages 1
  • Nombre de façades 3

Informations sur l'extérieur

  • Terrasse 1
  • Surface terrasse 1 45 m²

Informations sur l'intérieur

  • Surface habitable 148,00 m²
  • Cuisine Oui
  • Type de cuisine Equipée
  • Nombre de chambres 3
  • Nombre de salle de bain 1
  • Type d'énergie du chauffage Mazout

Informations financières

  • Revenu cadastral 1020,00 €