Appartement à Visé 2 chambres avec garage

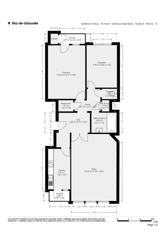
Idéalement situé à 2 pas du centre de Visé, appartement (+/- 83 m² d’après PEB) 2 chambres et garage situé au rez-de-chaussée d’une résidence proche de toutes les facilités. Cet appartement se compose comme suit : hall d’entrée, toilette indépendante, spacieux et lumineux séjour (+/- 23m²), cuisine équipée (four, taque, hotte, évier, lave-vaisselle) avec petite terrasse, 2 chambres ( +/- 10 et 15m²) dont la plus grande dispose d'une terrasse et d'un petit espace de rangement, salle de bains (baignoire, lavabo), buanderie et débarras. Cet appartement dispose également d'une cave et d'un garage privatif. Châssis PVC double vitrage, chauffage central au mazout (compteur commun avec calorimètres), compteurs électrique et eau individuels, parlophone, ascenseur. Le bien est actuellement loué 600€/mois (+ forfait de 150€/mois pour les charges communes y compris le chauffage et l’entretien des communs). PEB E : E spéc: 361 kWh/m².an, E totale : 30.049 kWh/an, n°20250616009028. R.C : 989€. Belle situation ! Idéal pour investissement ou premier achat ! Informations données à titre indicatif et non contractuelles. www.waucomont.be
Classe énergétique Énergie spécifique Énergie totale Émission de CO2 PEB No.
E 361kWh/m².an 30049kWh.an 90kg CO2/an 20250616009028

Informations générales

  • Type de bien Appartements
  • Sous-catégorie Appartement
  • Disponibilité Date à convenir
  • Etat À rafraîchir
  • Nombre d'étages 3
  • Nombre de façades 3

Informations sur l'extérieur

  • Garage 1

Informations sur l'intérieur

  • Surface habitable 83,00 m²
  • Cuisine Oui
  • Type de cuisine Equipée
  • Nombre de chambres 2
  • Nombre de salle de bain 1
  • Type d'énergie du chauffage Mazout

Informations financières

  • Revenu cadastral 989,00 €