HEUSY - Appartement 2 à 3 ch., balcons avec vue

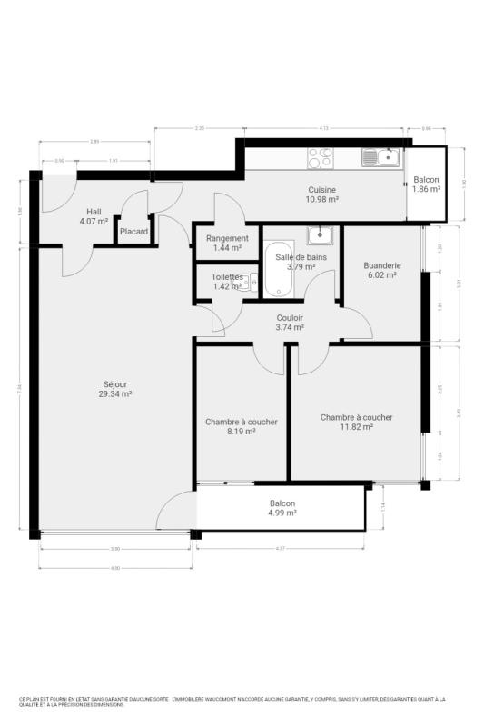
Lumineux appartement à rafraîchir (+/- 92m² d'après PEB) 2 chambres, bureau, 2 balcons et place de stationnement privative bien situé au 4ième étage d'une résidence à Heusy proche du Parc de Séroule. Composition: hall d'entrée, agréable séjour (+/- 29m²), cuisine équipée (frigo, congélateur, taque électrique, hotte, four, lave-vaisselle, évier), toilette indépendante, hall de nuit, 2 chambres (+/- 8 et 11m²), bureau ou dressing (+/- 6m²), salle de bains (baignoire, lavabo). L'appartement dispose également de 2 balcons offrant une agréable vue, d'une cave et d'une place de stationnement privative. Chauffage central au gaz, châssis double vitrage aluminium, électricité conforme, ascenseur, parlophone. Charges communes (provisions): +/- 260€/mois (eau et chauffage compris), toutefois nous sommes en attente de l'actualisation des informations syndic. PEB: C, E spec: 229 kWh/m².an, E totale: 20.965 kWh/an, n° 20260227020009. R.C.: 1.132€. Belle situation ! Superbe opportunité! Informations données à titre indicatif et non contractuelles. www.waucomont.be
Classe énergétique Énergie spécifique Énergie totale Émission de CO2 PEB No.
C 229kWh/m².an 20965kWh.an 42kg CO2/an 20260227020009

Informations générales

  • Type de bien Appartements
  • Sous-catégorie Appartement
  • Disponibilité À l'acte
  • Etat À rafraîchir
  • Nombre d'étages 5
  • Nombre de façades 2

Informations sur l'extérieur

  • Parking 1
  • Terrasse 1
  • Surface terrasse 1 6 m²

Informations sur l'intérieur

  • Surface habitable 92,00 m²
  • Cuisine Oui
  • Type de cuisine Aménagée
  • Nombre de chambres 3
  • Nombre de salle de bain 1
  • Type d'énergie du chauffage Gaz

Informations financières

  • Revenu cadastral 1132,00 €