Maison de type "Duplex" avec terrasse

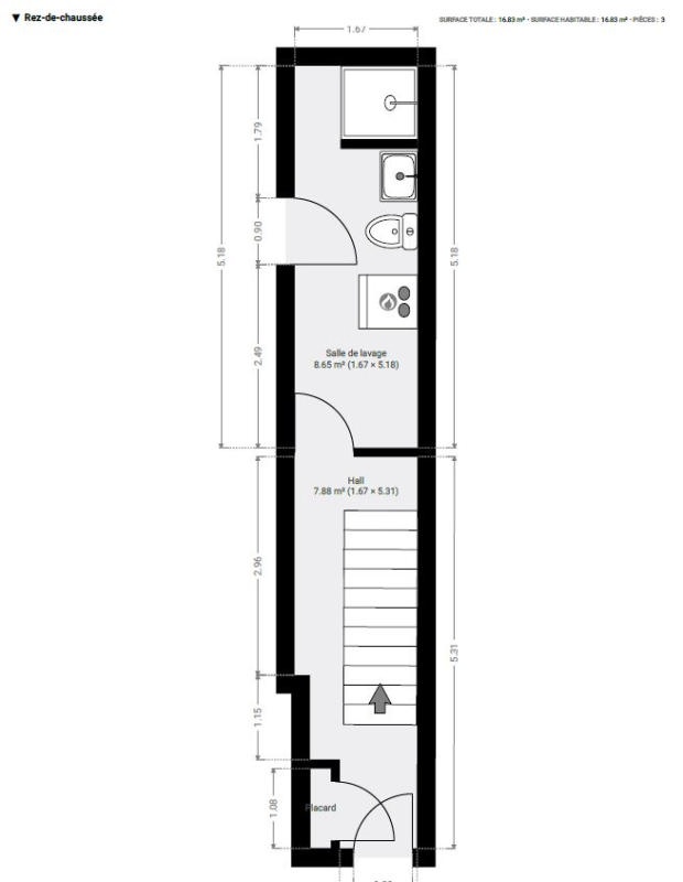
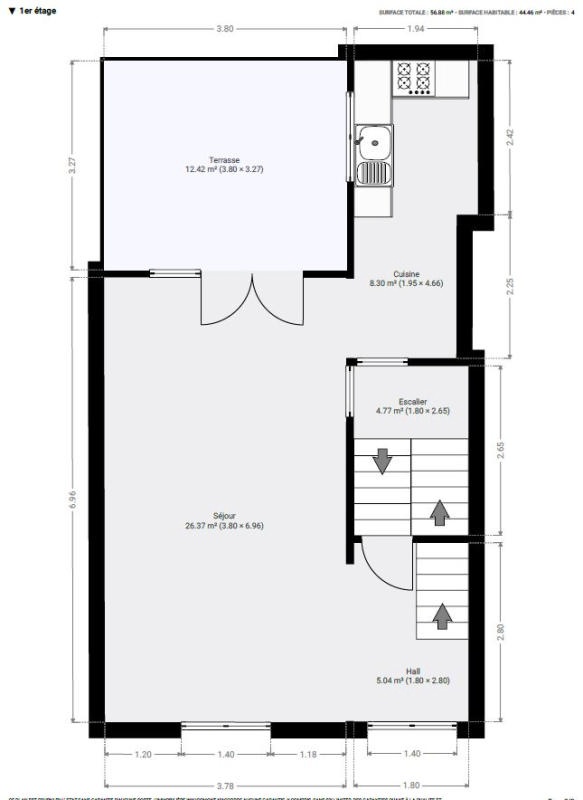
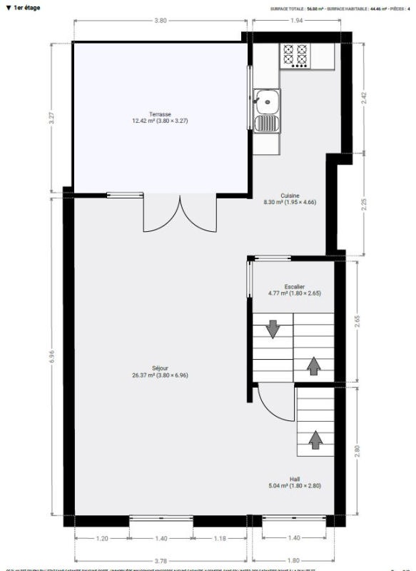
OPTION ! OPTION ! OPTION ! Jolie maison avec terrasse (+/- 89m² d'après PEB) 1 chambre bien située dans un quartier en développement à Herstal/Liège. Elle se compose comme suit : Rez-de-chaussée: Hall d’entrée +/- 8m², salle d’eau (buanderie, WC, lavabo et douche +/-9m²). Au 1er étage : spacieux séjour +/- 26m² avec cuisine équipée ouverte. La pièce de vie donne accès directement à la terrasse +/-12m². Au 2ème étage : une chambre +/- 16m² et une salle de bain (baignoire, lavabo, WC). Actuellement loué : 615€/mois. Chauffage central au gaz à condensation, châssis double vitrage bois, électricité non-conforme. PEB: F, E Spéc: 434kWh/m².an, E totale: 38.608 kWh/an, n° 20230820006519. R.C. : 659€, superficie totale parcelle: 110 m². Informations données à titre indicatif et non contractuelles. Idéal pour 1er achat ou investissement ! www.waucomont.be
Classe énergétique Énergie spécifique Énergie totale Émission de CO2 PEB No.
F 434kWh/m².an 38608kWh.an 79kg CO2/an 20230820006519

Informations générales

  • Type de bien Appartements
  • Sous-catégorie Duplex
  • Disponibilité Date à convenir
  • Etat Bon
  • Nombre d'étages 2
  • Nombre de façades 2

Informations sur l'extérieur

  • Surface parcellaire 110,00 m²
  • Environnement Urbain
  • Terrasse 1
  • Surface terrasse 1 12 m²

Informations sur l'intérieur

  • Surface habitable 89,00 m²
  • Cuisine Oui
  • Type de cuisine Equipée et aménagée
  • Nombre de chambres 1
  • Nombre de salle de bain 2
  • Type d'énergie du chauffage Gaz

Informations financières

  • Revenu cadastral 669,00 €