Penthouse 2 chambres

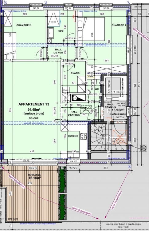
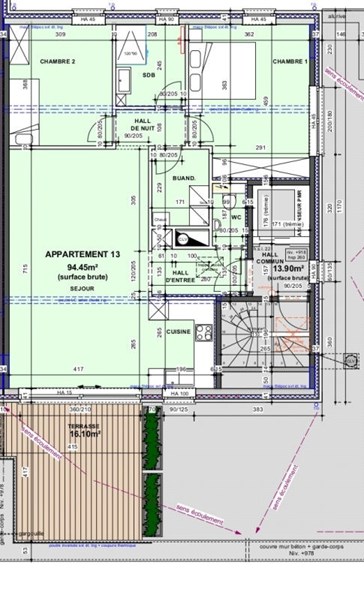
Situé au troisième étage du premier immeuble du Clos du Parc, le penthouse "A13" (+/- 94,45 m² brut hors terrasse selon plan) est composé d'un hall d'entrée, d'un lumineux séjour avec un espace cuisine ouvert et accès direct vers la terrasse à rue orientée sud-ouest, wc indépendant, buanderie, salle de douches et deux chambres. Isolés aux normes actuelles, thermiques et acoustiques, les bâtiments vous offrent un confort optimal et une économie d'énergie. Les appartements sont vendus hors peinture et cuisine. Chaudière à condensation au gaz ou pompe à chaleur, compteurs séparés, double vitrage PVC, ascenseurs. Référence PEB: RWPEB-073129. Prix hors frais (TVA 21%, frais de raccordement, honoraires notariaux et frais d'acte de base). Contactez-nous pour visiter votre futur investissement ! Plus d'informations disponibles sur demande à info@waucomont.be. Informations données à titre indicatif et non contractuelles. www.waucomont.be
Classe énergétique Énergie spécifique Énergie totale Émission de CO2 PEB No.
/ / / / RWPEB-073129

Informations générales

  • Type de bien Appartements
  • Sous-catégorie Appartement
  • Disponibilité À l'acte
  • Etat Excellent
  • Année de construction 2024
  • Nombre d'étages 3
  • Nombre de façades 2

Informations sur l'extérieur

  • Surface parcellaire 110,00 m²
  • Terrasse 1
  • Surface terrasse 1 16 m²

Informations sur l'intérieur

  • Surface habitable 94,00 m²
  • Cuisine Non
  • Type de cuisine Sans
  • Nombre de chambres 2
  • Nombre de salle de bain 1
  • Type d'énergie du chauffage Gaz