Penthouse (3ch + bureau) - Possibilité 2 apparts! Vue panoramique

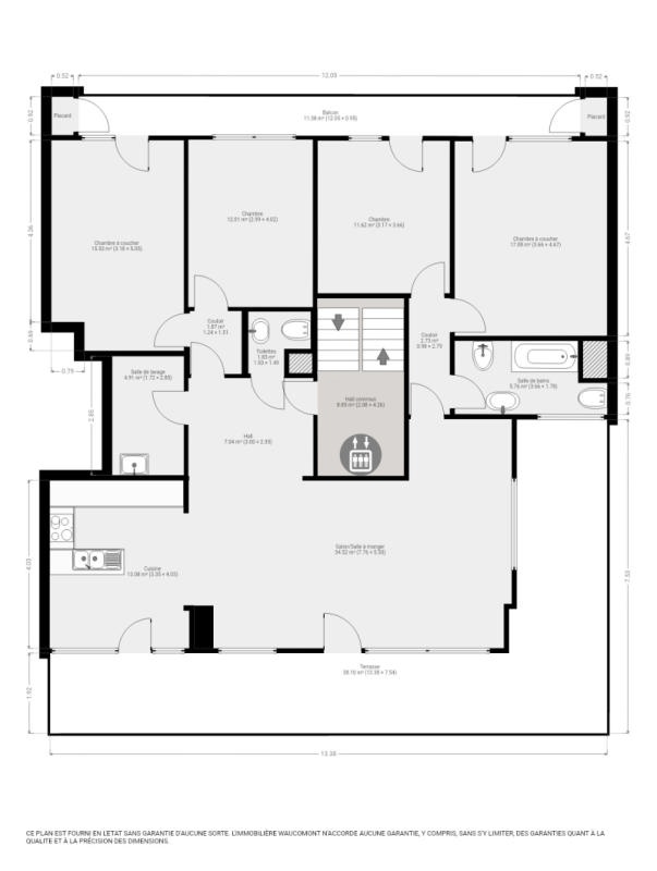
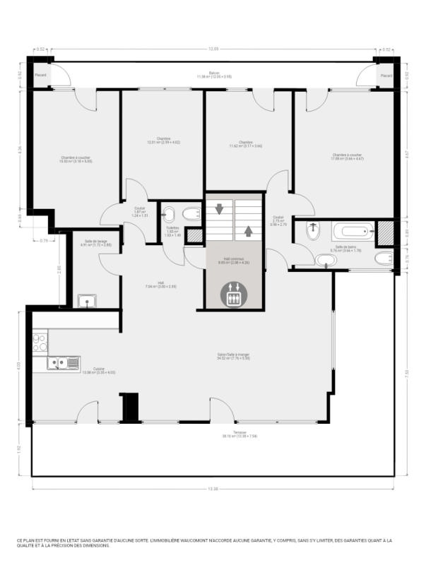
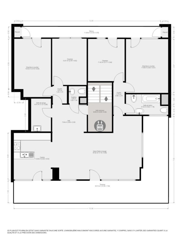
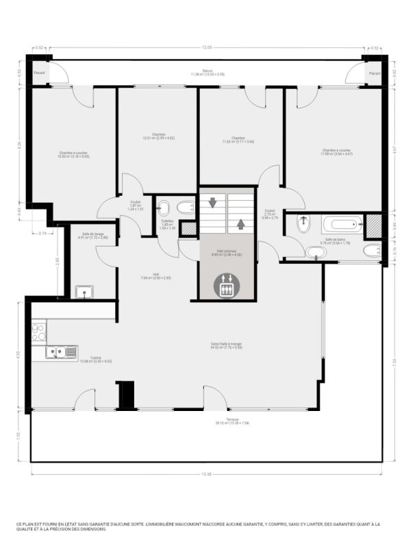
! OPTION ! OPTION ! Deux appartements formant actuellement un magnifique penthouse (toujours repris comme 2 appartements dans l'acte de base pour ceux qui souhaiteraient en refaire 2 appartements) de 3 chambres et bureau (ou 4 chambres). Ce bien basse énergie (PEB B) offre une splendide vue dégagée et est idéalement situé au 6ème et dernier étage d'un immeuble sur les hauteurs de Visé et dispose d'une cave privative. Le penthouse (+/- 179m² d'après PEB) se compose comme suit: spacieux et lumineux séjour +/- 55 m² avec cuisine équipée ouverte (micro-ondes, four, taque vitrocéramique, hotte, lave-vaisselle) ainsi qu'un accès à une belle terrasse de +/- 38 m² offrant une magnifique vue dégagée, toilette indépendante, 2 halls de nuit donnant chacun accès à 2 chambres (+/- 12 et 15 m² d'un côté, +/- 12 et 17 m² de l'autre côté) avec grand balcon de +/- 11 m² sur toutes la partie arrière (avec 2 placards), salle de bains (baignoire, lavabo, wc, bidet), buanderie avec placards intégrés. Chauffage central au gaz (calorimètres, nouvelle chaudière commune), châssis double vitrage en PVC avec volets électriques dans les chambres et screen solaires dans le séjour, adoucisseur d'eau, système d'alarme, vidéoparlophone, porte blindée, toiture isolée, ... Charges communes : +/- 260€/mois (y compris la provision pour le chauffage privatif). PEB: B, E Spéc: 166 kWh/m².an, E totale: 29.735 kWh/an, n° 20221207005565. R.C.: 1.320€. Possibilité d'acquérir en supplément un grand garage de +/- 46 m² (porte sectionnelle motorisée) pour 50.000 €. Informations données à titre indicatif et non contractuelles. Magnifique situation et magnifique vue dégagée ! www.waucomont.be
Classe énergétique Énergie spécifique Énergie totale Émission de CO2 PEB No.
B 166kWh/m².an 29735kWh.an 31kg CO2/an 20221207005565

Informations générales

  • Type de bien Appartements
  • Sous-catégorie Appartement
  • Disponibilité À l'acte
  • Etat Bon
  • Année de construction 1965
  • Nombre d'étages 6
  • Nombre de façades 3

Informations sur l'intérieur

  • Surface habitable 179,00 m²
  • Cuisine Oui
  • Type de cuisine Equipée
  • Nombre de chambres 3
  • Type d'énergie du chauffage Gaz

Informations financières

  • Revenu cadastral 1320,00 €

Documents