Spacieux appartement 3ch et garage au centre de Blegny

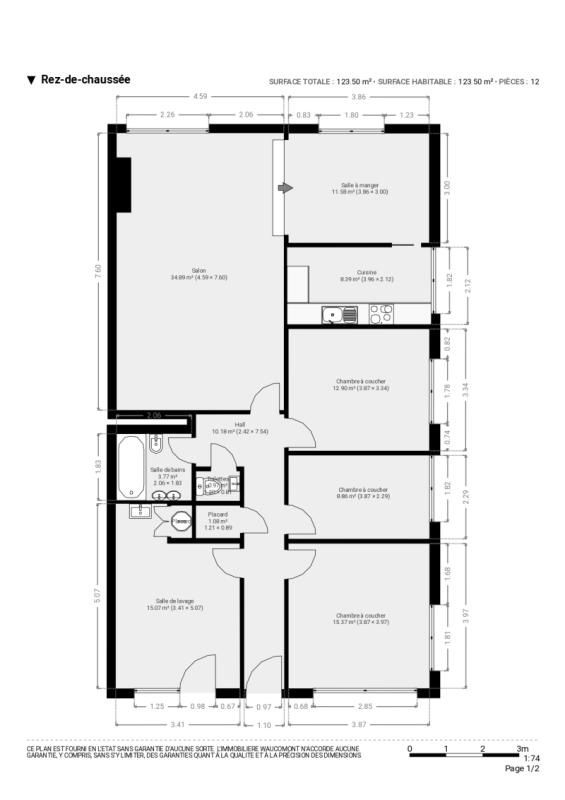
OPTION ! OPTION ! Spacieux appartement (+/- 150 m² d'après PEB) 3 chambres avec garage idéalement situé au rez-de-chaussée d'un immeuble au centre de Blegny et proche de toutes les commodités. Il se compose comme suit : hall d'entrée avec débarras, grand séjour (+/- 47m²), cuisine semi-équipée (four, taque vitrocéramique, hotte, lave-vaisselle), espace buanderie (+/- 15m²), toilette indépendante, 3 chambres (+/- 9, 12 et 15m²), salle de bains (baignoire, lavabo), toilette indépendante et un spacieux garage à l'arrière (+/- 23m²). Châssis double et simple vitrage bois, chauffage central mazout. PEB : D: E spec: 318 kWh/m².an, E totale : 47670 kWh/an n° 20190226016261. L’appartement est actuellement loué 780€/mois mais sera normalment libre à l'acte. Charges communes : provison de +/- 30€/mois (entretien des extérieurs). Compteurs d'eau et d'électricité indépendants. Chauffage central au mazout (chaudière individuelle). R.C. : 959€. Opportunité à saisir ! A découvrir au plus vite ! Informations données à titre indicatif et non contractuelles. www.waucomont.be.
Classe énergétique Énergie spécifique Énergie totale Émission de CO2 PEB No.
D 318kWh/m².an 47670kWh.an 80kg CO2/an 20190226016261

Informations générales

  • Type de bien Appartements
  • Sous-catégorie Appartement
  • Disponibilité Date à convenir
  • Etat À rafraîchir
  • Année de construction 1971
  • Nombre d'étages 0
  • Nombre de façades 3

Informations sur l'extérieur

  • Garage 1

Informations sur l'intérieur

  • Surface habitable 150,00 m²
  • Cuisine Oui
  • Type de cuisine Equipée
  • Nombre de chambres 3
  • Nombre de salle de bain 1
  • Type d'énergie du chauffage Mazout

Informations financières

  • Revenu cadastral 959,00 €