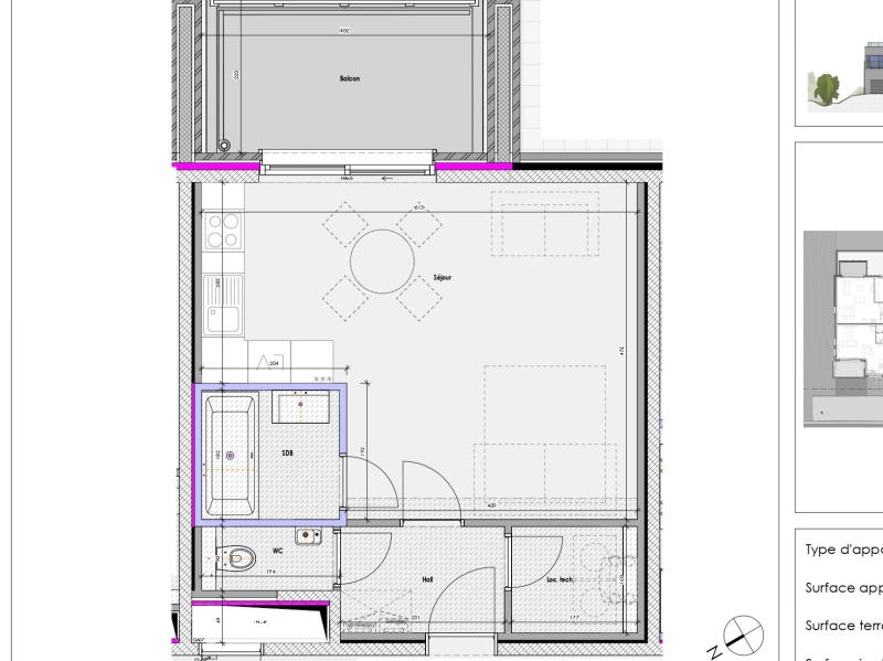
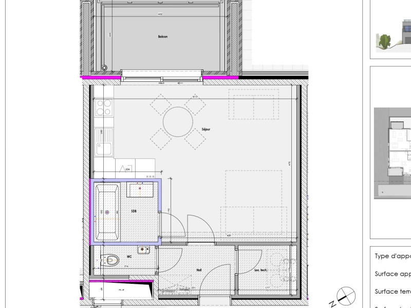
STUDIO + TERRASSE

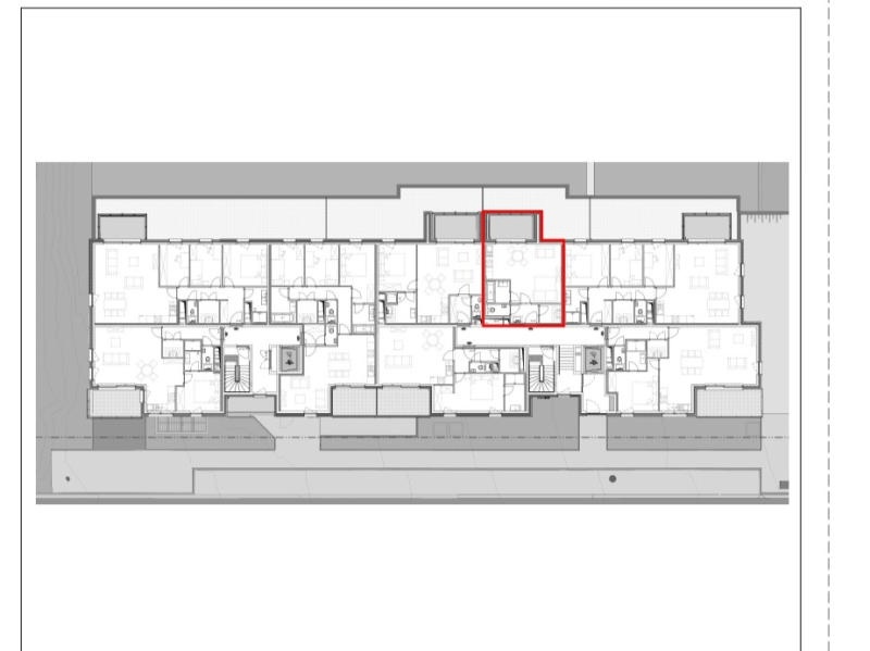
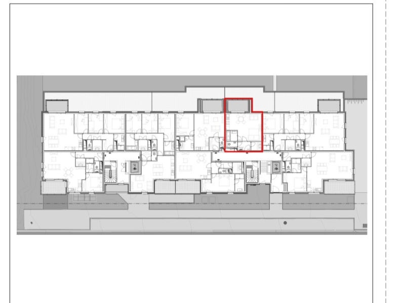
ACTION BATIBOUW - Cuisine équipée et appareils sanitaires offerts (valable pour tout engagement avant le 31 mars 2026) ! Projet exceptionnel érigé à proximité de l'hôpital du MontLégia! Privilégia vous propose ce STUDIO (+/- 44 m² d'après plans) situé au 1er étage: spacieux hall d'entrée, espace ouvert comprenant une cuisine équipée, coin dormir et une baie de fenêtre s'ouvrant vers une terrasse orientée Sud-Est (+/- 10 m²), salle de bains, local technique/buanderie et wc indépendant. Le studio est vendu achevé à l'exception des peintures et luminaires (cuisine incluse). Des emplacements de parking en sous-sol et des caves sont proposés en supplément. Néanmoins, de spacieux espaces sécurisés et aménagés sont disponibles et libre d'accès aux occupants pour les vélos. Chauffage sol et rafraîchissement via un réseau de chaleur (alternative écologique aux climatisations actuelles), compteurs individuels (eau et électricité), châssis double vitrage PVC, ventilation double flux, porte d'entrée individuelle anti-effraction, vidéophone. Référence PEB: RWPEB-135259. Prix hors frais (TVA 21%, droits d'enregistrements sur le terrain, frais de raccordements, honoraires notariaux et frais d'acte de base). N'hésitez pas à nous contacter pour fixer une visite ! Plus d'informations disponibles sur demande à info@waucomont.be. Informations données à titre indicatif et non contractuelles. www.waucomont.be
Classe énergétique Énergie spécifique Énergie totale Émission de CO2 PEB No.
/ / / / RWPEB-135259

Informations générales

  • Type de bien Appartements
  • Sous-catégorie Studio
  • Disponibilité Après travaux
  • Etat Excellent
  • Année de construction 2025
  • Nombre d'étages 4
  • Nombre de façades 1

Informations sur l'extérieur

  • Surface parcellaire 54,00 m²
  • Garage 1
  • Terrasse 1
  • Surface terrasse 1 10 m²

Informations sur l'intérieur

  • Surface habitable 44,00 m²
  • Cuisine Oui
  • Type de cuisine Aménagée
  • Nombre de chambres 1
  • Nombre de salle de bain 1
  • Type d'énergie du chauffage Collectif