Superbe penthouse de 2017, 2 chambres, belle terrasse et garage

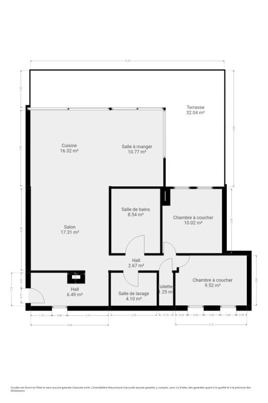
Superbe penthouse (+/- 118 m² d'après PEB) 2 chambres avec belle terrasse, garage et ascenseur situé au 2ème étage d'une résidence de 2017 de 20 appartements à Oupeye. Proche de toutes les commodités, il se compose comme suit: Sous-sol: une cave privative. 2ème étage: hall d'entrée, lumineux séjour avec grandes baies vitrées (+/- 44 m²) et cuisine ouverte équipée (taque induction, hotte, four, micro-ondes, frigo, lave-vaisselle) et accès à la terrasse (+/- 32 m²), hall de nuit, 2 chambres (+/- 9 et 10m²), salle de bains (douche, lavabo), buanderie, toilette indépendante. Garage individuel pour 1 voiture. Chauffage central gaz (chaudière individuelle), châssis double vitrage aluminium, ascenseur, parlophone, climatisation réversible dans le séjour, VMC. Charges mensuelles de +/- 185 €/mois. PEB : B, E Spéc: 125 kWh/m².an, E totale : 14.721 WH/an, n° 20190308500945. R.C. : 1.022 €. Belle opportunité! A découvrir! Informations données à titre indicatif et non contractuelles.www.waucomont.be.

Classe énergétique Énergie spécifique Énergie totale Émission de CO2 PEB No.
B 125kWh/m².an 14721kWh.an 22kg CO2/an 20190308500945

Informations générales

  • Type de bien Appartements
  • Sous-catégorie Appartement
  • Disponibilité Date à convenir
  • Etat Excellent
  • Nombre d'étages 2
  • Nombre de façades 3

Informations sur l'extérieur

  • Garage 1
  • Terrasse 1
  • Surface terrasse 1 32 m²

Informations sur l'intérieur

  • Surface habitable 118,00 m²
  • Cuisine Oui
  • Type de cuisine Equipée
  • Nombre de chambres 2
  • Nombre de salle de bain 1
  • Type d'énergie du chauffage Gaz

Informations financières

  • Revenu cadastral 1022,00 €