Vaste rez commercial +/- 333 m² disposant de 2 garages

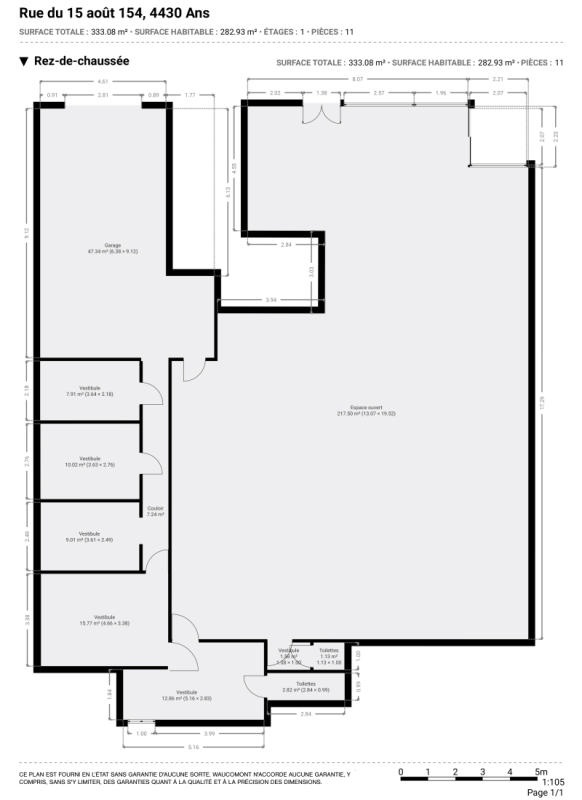
Situé à Ans, bel et spacieux espace commercial (+/- 333 m² d'après plans) disposant de 2 garages dont un en sous-sol. Le bien se compose comme suit: sas d'entrée, vaste espace commercial (+/- 217 m²) avec vitrine de +/- 4,5 m de large, 5 pièces ( +/- 8, 9, 10, 15, 12 m²) pouvant servir de réserve, toilettes indépendantes, grand garage (+/- 47 m²). Le bien dispose également d'un garage en situé au sous sol actuellement loué 80 €/mois. Chauffage central mazout, châssis simple vitrage Aluminium. Charges communes +/- 350€/ mois R.C.: 2.565 €. Ce rez-de-chaussée est actuellement libre d'occupation. Nombreuses possibiltés commerciales (magasin, bureaux, esthétique, ...) Informations données à titre informatif et non contractuelles. Belle situation! www.waucomont.be

Informations générales

  • Type de bien Appartements
  • Sous-catégorie Appartement
  • Disponibilité À l'acte
  • Etat À rafraîchir
  • Nombre d'étages 4
  • Nombre de façades 2

Informations sur l'extérieur

  • Garage 2

Informations sur l'intérieur

  • Surface habitable 333,00 m²
  • Cuisine Non
  • Type de cuisine Sans
  • Type d'énergie du chauffage Collectif

Informations financières

  • Revenu cadastral 2565,00 €