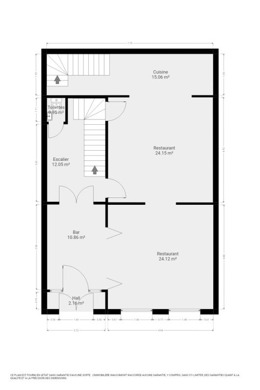
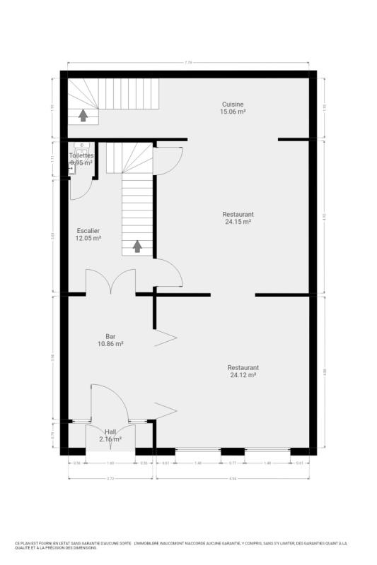
Au cur de la rue commerçante la plus prisée de Visé, découvrez cette maison de commerce (+/- 260m² d'après plans (hors caves)) séduisant grâce à son architecture de caractère et son potentiel rendement locatif élevé. Cet immeuble se distingue par sa façade à rue remarquable, son intérieur raffiné et ses beaux volumes sublimés par des hauts plafonds moulurés. Il se compose comme suit: Sous-sol: spacieuses caves (+/- 90m²). Rez-de-chaussée: surface commerciale (+/- 86m²) anciennement occupée par un restaurant. Aux 1er et 2ème étages : spacieuses pièces aménageables ( +/- 15, 24,25, 26, 43 m²) offrant de nombreuses possibilités. Chaque étage dispose également d'un vaste palier et d'une toilette indépendante. Chauffage central au gaz, châssis simple bois (façade rdc) avec volet électrique et double vitrage aluminium. R.C.: 1.834€, superficie totale (terrain): 114m². Le bien est repris comme maison de commerce à la matrice cadastrale. Nombreuses possibilités sous réserve des autorisations nécessaires. Libre d'occupation. Bien unique dans le centre de Visé ! Opportunité rare ! Informations données à titre indicatif et non contractuelles. www.waucomont.be
Informations générales
Type de bien
Commerces / Bureaux
Sous-catégorie
Maison
Disponibilité
À l'acte
Etat
Bon
Nombre d'étages
0
Nombre de façades
2
Informations sur l'extérieur
Surface parcellaire
114,00 m²
Informations sur l'intérieur
Surface habitable
260,00 m²
Cuisine
Oui
Type de cuisine
Aménagée
Nombre de chambres
4
Type d'énergie du chauffage
Gaz
Informations financières
Revenu cadastral
1834,00 €
Partager ce bien sur les réseaux sociaux
Nous utilisons des cookies pour vous offrir la meilleure expérience sur notre site. Vous pouvez en savoir plus sur les cookies que nous utilisons ou les désactiver dans les
paramètres de cookies