FAIRE OFFRE A PARTIR DE 408.600 € ! Vaste immeuble

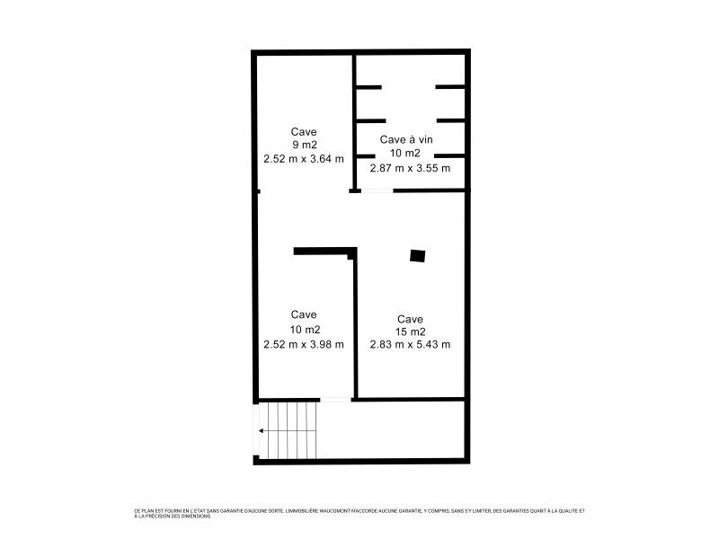
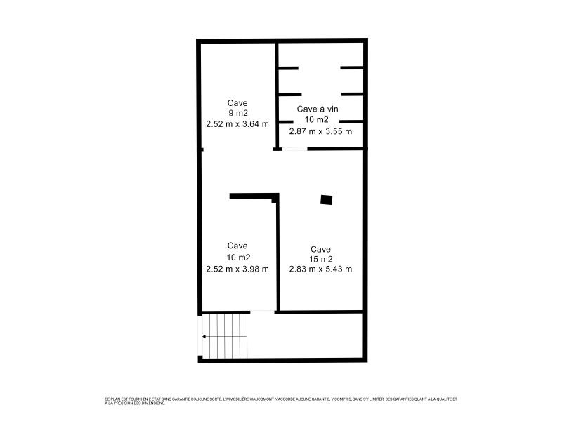
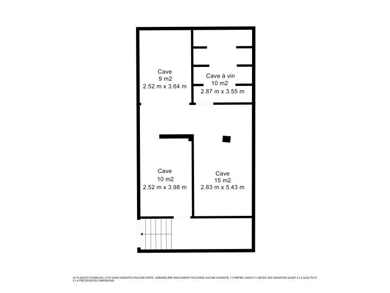
Faire offre à partir de 408.600 € ! Idéalement situé dans le centre de Fléron, vaste immeuble à usage commercial (+/- 414 m² d’après PEB) entièrement rénové en 2022 (actuellement Maison de la Convivialité) offrant de nombreuses possibilités et bénéficiant d'une belle visibilité! Il se compose comme suit : Sous-sol : caves. Rez-de-chaussée : spacieux hall d’accueil comprenant un bar (+/- 70m²), une salle de restaurant (+/- 98m²), une cuisine professionnelle super équipée (+/- 43m²), un bureau (+/- 32m²), un bel espace (+/- 28m²), un veste espace (+/- 48m²), toilettes indépendantes (homme, femmes et PMR). 1er étage : mezzanine (+/- 39m²). 2ème étage : 3 greniers de rangement (+/- 9, 9 et 13m²). A l’extérieur, vous bénéficierez d’une grande terrasse couverte (+/- 104m²) en partie à l’arrière du bien, différents parterres et plusieurs emplacements de parking. Le restaurant (comprenant la salle de restaurant, la cuisine, la mezzanine, le bureau, le hall d’accueil avec bar, les caves et la terrasse) est actuellement loué 1.121€/mois (hors charge). Chauffage central au gaz de ville, châssis double vitrage PVC, système d’alarme. PEB d’un bâtiment public : E. Spéc: 356 kWh/m².an, n° P-20220616-0005-A3. R.C. : 3.061€. Superficie totale (terrain) : 1.250m². Très belle situation commerciale ! Occasion à ne pas manquer ! Faire offre à partir de 408.600€ (sous réserve de l'acceptation des propriétaires). Informations données à titre indicatif et non contractuelles.www.waucomont.be

Classe énergétique Énergie spécifique Énergie totale Émission de CO2 PEB No.
E 356kWh/m².an / 87kg CO2/an P-20220616-0005-A3

Informations générales

  • Type de bien Commerces / Bureaux
  • Sous-catégorie Locaux Commerciaux
  • Disponibilité Date à convenir
  • Etat Très bon
  • Nombre d'étages 0
  • Nombre de façades 4

Informations sur l'extérieur

  • Surface parcellaire 1250,00 m²
  • Parking 2
  • Terrasse 1
  • Surface terrasse 1 104 m²

Informations sur l'intérieur

  • Surface habitable 414,00 m²
  • Cuisine Oui
  • Type de cuisine Super équipée
  • Type d'énergie du chauffage Gaz

Informations financières

  • Revenu cadastral 3061,00 €