Immeuble situé au centre de Visé (rue commercante)

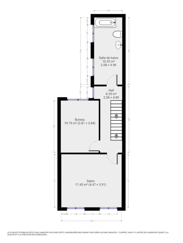
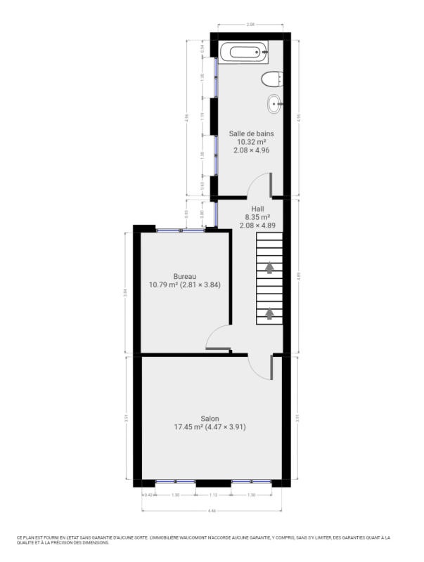
Immeuble comprenant un rez-commercial et un duplex à rénover (+/- 98m² d'après PEB) idéalement situé dans l'hyper centre de Visé (rue commerçante) et offrant de multiples possibilités et une visibilité de premier ordre. Il se compose comme suit: Sous-sol: 2 caves. Rez-de-chaussée: agréable surface commercial (+/ 54 m²) anciennement occupée par un opticien et disposant d'une largeur de vitrine à rue de +/- 5 mètres. 1er étage: hall de nuit, séjour +/- 17 m², cuisine à aménager +/- 11 m², salle de bains (baignoire, lavabo, wc). 2ème étage: palier, 2 chambres ( +/- 11 et 18 m²). Chauffage central au gaz, châssis simple (en majorité) et double vitrage bois, la vitrine est équipée d'un volet électrique et de bannes solaires électriques. R.C.: 1.561€, superficie totale (terrain): 60 m². PEB: E, E. Spéc: 404 kWh/m².an, E totale: 39.440 kWh/an, n° 20220913003022. Le bien est vendu en l'état, l'acquéreur devra faire son affaire personnelle de l'évacuation des divers meubles, objets et encombrants. Le bien est repris comme maison de commerce à la matrice cadastrale. Informations données à titre indicatif et non contractuelles. Libre d'occupation. Belle opportunité commerciale au centre de Visé! www.waucomont.be
Classe énergétique Énergie spécifique Énergie totale Émission de CO2 PEB No.
E 404kWh/m².an 39440kWh.an 74kg CO2/an 20220913003022

Informations générales

  • Type de bien Commerces / Bureaux
  • Sous-catégorie Maison
  • Disponibilité À l'acte
  • Etat À rafraîchir
  • Année de construction 1941
  • Nombre d'étages 0
  • Nombre de façades 2

Informations sur l'extérieur

  • Surface parcellaire 60,00 m²

Informations sur l'intérieur

  • Surface habitable 147,00 m²
  • Cuisine Non
  • Type de cuisine Sans
  • Nombre de chambres 2
  • Nombre de salle de bain 1
  • Type d'énergie du chauffage Gaz

Informations financières

  • Revenu cadastral 1561,00 €