Maison 3 ch avec grand jardin et commerce

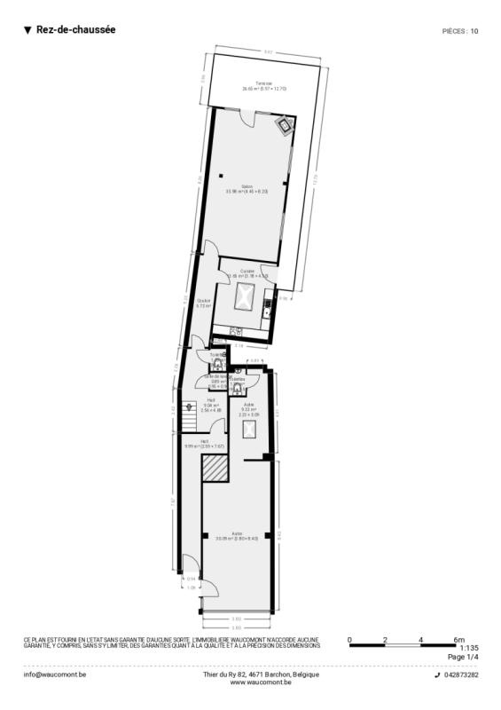
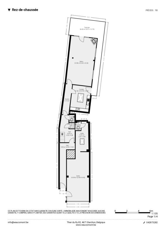
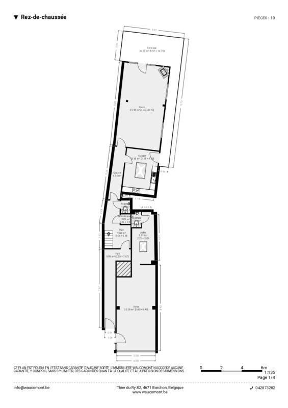
Idéalement situé au centre de Fléron dans la rue commerçante, bel immeuble de rapport comprenant un rez-commercial et une habitation (maison) (+/- 171 m² d'après PEB) offrant de multiples possibilités et une visibilité de premier ordre. Le bien repris comme maison de commerce à la matrice cadastrale se compose comme suit: Sous-sol: 2 caves. Rez-de-chaussée: Commerce: agréable surface commerciale (+/ 40 m²) avec entrée indépendante. Habitation (maison): hall d'entrée, toilette indépendante, cuisine (+/- 14m²) et grand séjour (+/- 36 m²) donnant sur la terrasse couverte (+/- 27 m² ) et le jardin.1er étage: hall de nuit, 2 chambres (+/- 14 et 16 m² ) et une salle de douches avec wc. 2ème étage: hall de nuit, 1 chambre ( +/- 23 m²) et un grenier. Chauffage central gaz, châssis double vitrage . R.C.: 1.065€, Superficie totale terrain: +/- 361 m². PEB: F, E. Spéc: 461 kWh/m².an, E totale: 78.668 kWh/an, n°20230702005471. Informations données à titre indicatif et non contractuelles. Le rez commercial est actuellement loué, la maison est libre d'occupation. Belle opportunité au centre de Fléron ! www.waucomont.be
Classe énergétique Énergie spécifique Énergie totale Émission de CO2 PEB No.
F 461kWh/m².an 78668kWh.an 87kg CO2/an 20230702005471

Informations générales

  • Type de bien Commerces / Bureaux
  • Sous-catégorie Maison
  • Disponibilité Date à convenir
  • Etat Non précisé
  • Nombre d'étages 0
  • Nombre de façades 2

Informations sur l'extérieur

  • Surface parcellaire 361,00 m²

Informations sur l'intérieur

  • Surface habitable 171,00 m²
  • Cuisine Oui
  • Type de cuisine Equipée
  • Nombre de chambres 3
  • Salle de douche 1
  • Type d'énergie du chauffage Gaz

Informations financières

  • Revenu cadastral 1065,00 €