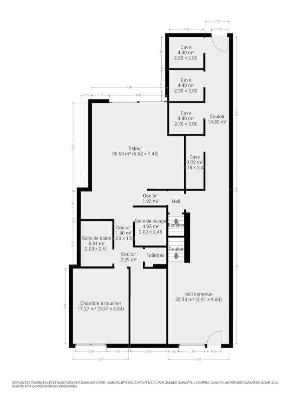
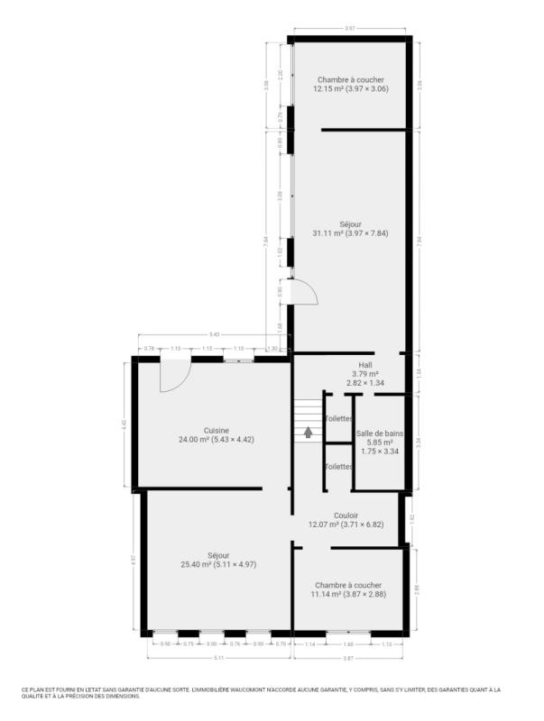
Bel et vaste immeuble (+/- 330 m² d'après plans cave et hall commun compris) comprenant 3 logements (3 appartements dont 1 duplex) en cours de travaux avec jardin et terrasse situé dans le centre du village de Warsage à proximité des commodités. Il se compose comme suit: Rez-de-chaussée: spacieux hall d'entrée commun (+/- 32 m²), un logement à parachever (+/- 79 m²) 2 chambres avec jardin. 1er étage: un logement (duplex) (+/- 104 m²) 2 à 3 chambres à parachever et 1 appartement (+/- 53 m²). Chaque logement dispose d'une cave privative. La commune de Dalhem a récemment confirmé que "l'immeuble comprend bien 3 logements distincts autorisés". Châssis double vitrage PVC. R.C.: 850€, Superficie totale (terrain): 348m². Informations données à titre indicatif et non contractuelles. Belle situation! Superbe opportunité! www.waucomont.be
Informations générales
Type de bien
Immeubles de rapport
Sous-catégorie
Immeuble
Disponibilité
À l'acte
Etat
À rénover
Nombre d'étages
0
Nombre de façades
2
Informations sur l'extérieur
Surface parcellaire
348,00 m²
Informations sur l'intérieur
Surface habitable
280,00 m²
Cuisine
Non
Type de cuisine
Sans
Nombre de chambres
6
Type d'énergie du chauffage
Pompe à chaleur
Informations financières
Revenu cadastral
850,00 €
Partager ce bien sur les réseaux sociaux
Nous utilisons des cookies pour vous offrir la meilleure expérience sur notre site. Vous pouvez en savoir plus sur les cookies que nous utilisons ou les désactiver dans les
paramètres de cookies