Bien de rapport au centre d' Oupeye

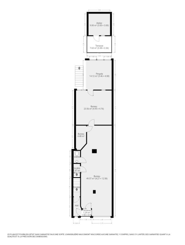
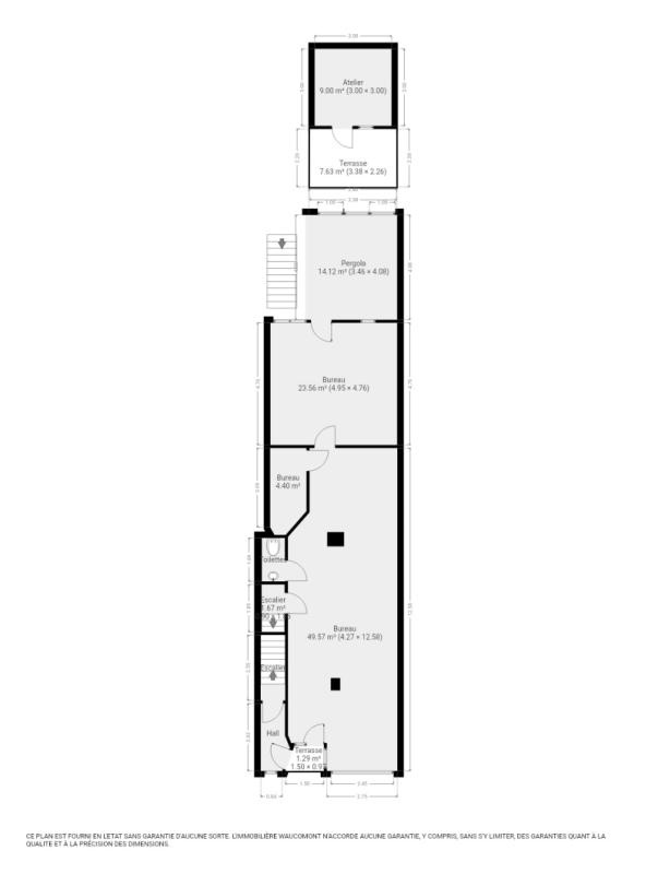
! OPTION ! OPTION ! OPTION ! Lumineux immeuble comprenant un spacieux rez-de-chaussée commercial (+/- 77 m²) avec permis d'urbanisme obtenu pour aménager le rez en second logement, et un appartement 2 chambres avec entrée indépendante à l'étage. Très bien situé au centre d'Oupeye, le bien se compose comme suit: Sous sol: cave (buanderie/chaufferie). Rez-de-chaussée commercial comprenant un bel espace avant de (+/- 53 m²) avec toilette indépendante et bureau séparé (+/- 23 m²) ainsi qu'une terrasse/pergola et un jardin. 1er étage (appartement +/- 96 m²): hall d'entrée avec toilette indépendante, séjour (+/- 22 m²), cuisine semi-équipée +/- 11 m² (hotte, taque vitrocéramique) , 2 chambres (+/- 11 et 13 m²), salle de douches (douche, double lavabos), coin chaufferie. L'appartement est actuellement loué 700€/mois. Chauffage central au gaz (2 chaudières privatives), compteurs d'électricité séparés et décompteurs pour l'eau et le gaz, châssis double vitrage et simple vitrage en bois, le bien est repris comme maison de commerce à la matrice cadastrale. R.C: 1.509 €, Superficie totale (terrain): 225 m². PEB , D, E.Spec.: 299 kWh/m².an, E. Totale: 28.663 kWh/an, n°20191018001346 . Belle opportunité offrant de nombreuses possibilités! A ne pas manquer! Informations données à titre indicatif et non contractuelles. www.waucomont.be
Classe énergétique Énergie spécifique Énergie totale Émission de CO2 PEB No.
D 299kWh/m².an 28663kWh.an 55kg CO2/an 20191018001346

Informations générales

  • Type de bien Immeubles de rapport
  • Sous-catégorie Immeuble
  • Disponibilité Date à convenir
  • Etat Bon
  • Nombre d'étages 1
  • Nombre de façades 3

Informations sur l'extérieur

  • Surface parcellaire 225,00 m²
  • Environnement Urbain
  • Terrasse 1
  • Surface terrasse 1 7 m²

Informations sur l'intérieur

  • Surface habitable 173,00 m²
  • Cuisine Oui
  • Type de cuisine Aménagée
  • Nombre de chambres 2
  • Salle de douche 1
  • Type d'énergie du chauffage Gaz

Informations financières

  • Revenu cadastral 1509,00 €