Bien de rapport au centre d'Aubel!

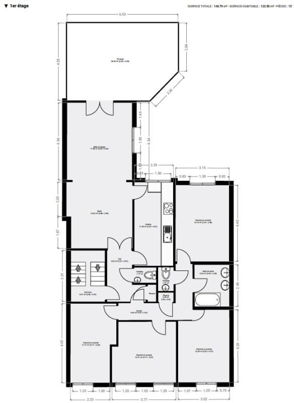
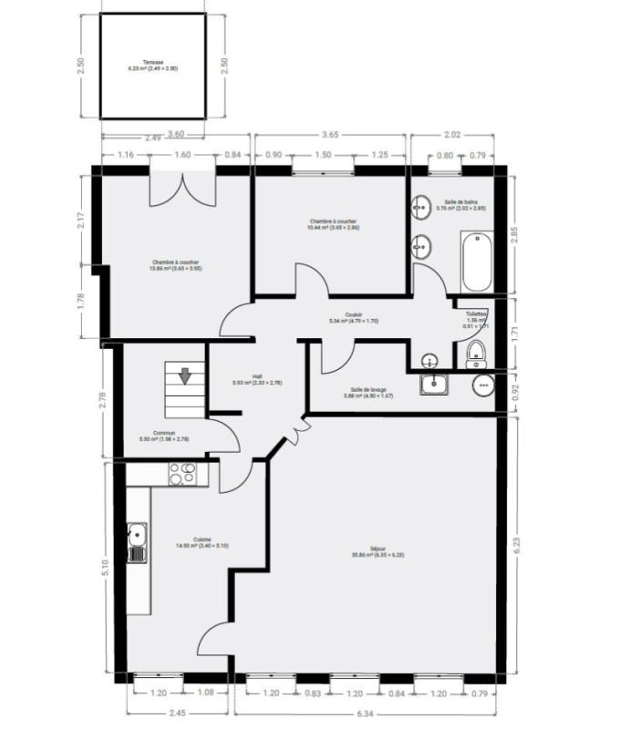
Jouissant d’une situation exceptionnelle au centre d’Aubel, cet immeuble de rapport comprend 3 unités : un rez-de-chaussée commercial (actuellement friterie en pleine activité) et 2 appartements (un 4 chambres (+/- 145m² d'après PEB) et un 2 chambres (+/- 124m² d'après PEB) aux 1er et 2ème étages disposant chacun d’une terrasse. Le bien se compose comme suit: Rez-de-chaussée: espace commercial (+/- 158m²) actuellement friterie avec un espace « restaurant » (+/- 85m²), un espace cuisine (+/- 21m²), une réserve (+/- 12m²), des sanitaires et un accès au jardin à l’arrière du bâtiment. 1er étage, appartement (libre d’occupation le 1er juin) avec salon/salle à manger (+/- 33m²) avec accès à une terrasse (+/- 28m²), cuisine (+/-11m²), 4 chambres (3 de 12 et une de 14m²) et salle de bains. 2ème étage : appartement (actuellement loué 580€/mois) avec séjour (+/- 36m²), cuisine (+/- 15m²), 2 chambres (+/- 10 et 13m²), salle de bains, buanderie, wc indépendant et une terrasse (+/- 6m²). Cet immeuble dispose également de caves. Châssis double vitrage bois, chauffage central mazout et électrique, 3 compteurs électriques, 3 compteurs d’eau. R.C. : 2.926€, Superficie totale parcelle : 172 m². PEB : C et G disponibles sur demande. Incroyable opportunité au centre d'Aubel! Informations données à titre indicatif et non contractuelles. www.waucomont.be

Classe énergétique Énergie spécifique Énergie totale Émission de CO2 PEB No.
G 759kWh/m².an 93789kWh.an 196kg CO2/an 20250414017195

Informations générales

  • Type de bien Immeubles de rapport
  • Sous-catégorie Immeuble
  • Disponibilité Date à convenir
  • Etat À rafraîchir
  • Année de construction 1989
  • Nombre d'étages 2
  • Nombre de façades 2

Informations sur l'extérieur

  • Surface parcellaire 172,00 m²
  • Environnement Urbain
  • Terrasse 1
  • Surface terrasse 1 34 m²

Informations sur l'intérieur

  • Surface habitable 427,00 m²
  • Cuisine Oui
  • Type de cuisine Aménagée
  • Nombre de chambres 6
  • Nombre de salle de bain 2
  • Type d'énergie du chauffage Mazout

Informations financières

  • Revenu cadastral 2926,00 €