Blegny centre - Bien de rapport (maison + commerce)

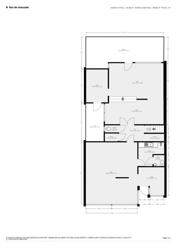
Immeuble de rapport reprenant une maison avec jardin (+/- 146m² d'après PEB) et une surface commerciale (+/- 55m² d'après plans) implanté dans le centre de Blegny et offrant une belle visibilité. La surface commerciale (anciennement salon de coiffure) se compose d'une vaste pièce (+/- 48m²) avec de larges vitrines (+/- 5,5 mètres), d'un coin cuisine et d'une toilette indépendante. La maison se compose d'un spacieux séjour (+/- 48m²), d'une cuisine aménagée (taque vitrocéramique, hotte, four, évier), d'une terrasse (+/- 26m²), de 3 chambres (+/- 9, 16 et 16m²), d'une salle de bains (baignoire, lavabo, wc) et d'un jardin. Châssis double vitrage PVC, chauffage central au mazout. Le logement est actuellement loué 815€/mois. L'accès à la maison se fait via un passage commun situé à gauche de l'immeuble. Superficie totale parcelle: 548 m². PEB de la maison: G, E Spéc: 874 kWh/m².an, E totale: 127.157 kWh/an, n° 20260108027303. Le bien faisant l'objet d'une division, nous ne disposons pas du montant du R.C. Informations données à titre indicatif et non contractuelles. Belle situation au centre Blegny!

Classe énergétique Énergie spécifique Énergie totale Émission de CO2 PEB No.
G 874kWh/m².an 127157kWh.an 216kg CO2/an 20260108027303

Informations générales

  • Type de bien Immeubles de rapport
  • Sous-catégorie Immeuble
  • Disponibilité Date à convenir
  • Etat À rafraîchir
  • Nombre d'étages 0
  • Nombre de façades 2

Informations sur l'extérieur

  • Surface parcellaire 548,00 m²
  • Parking 2
  • Terrasse 1
  • Surface terrasse 1 26 m²

Informations sur l'intérieur

  • Surface habitable 201,00 m²
  • Cuisine Oui
  • Type de cuisine Aménagée
  • Nombre de chambres 3
  • Nombre de salle de bain 1
  • Type d'énergie du chauffage Mazout