Ensemble de 5 maisons à rénover Retinne

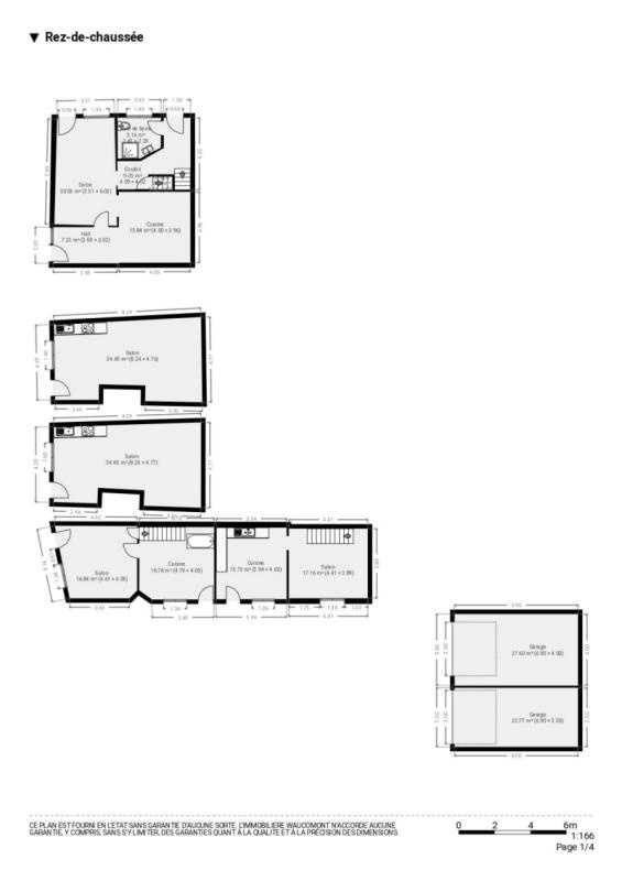
Ensemble de 5 maisons à rénover (+/- 80, 103, 108, 108 et 146m²) situé dans un endroit calme à Retinne, à proximité de toutes les commodités et offrant de nombreuses possibilités (sous réserve des autorisations nécessaires). Chacune des maisons dispose de 2 ou 3 chambres, d’un séjour et d’une cuisine aménagée. Certaines des maisons dispose d’une cave et/ou d’un grenier. L’ensemble dispose également d’une cour et 2 garages (+/- 22 et 27m²). Aucune garantie d'un point de vue urbanistique (une des maisons n'est pas reprise à la matrice cadastrale), salubrité, pompiers, ....etc. ne peut être donnée, le bien étant vendu en l'état. 2 maisons sont actuellement louées. Châssis double et simple vitrage bois, poêle à pellets présent dans une maison. PEB G à D disponibles sur demande. R.C. de 4 maisons : 1.545€, Superficie totale (terrain) : 486m². Beau potentiel! Informations données à titre indicatif et non contractuelles. wwww.waucomont.be
Classe énergétique Énergie spécifique Énergie totale Émission de CO2 PEB No.
G 865kWh/m².an 89949kWh.an 223kg CO2/an 20250812019998

Informations générales

  • Type de bien Immeubles de rapport
  • Sous-catégorie Immeuble
  • Disponibilité Date à convenir
  • Etat À rénover
  • Nombre d'étages 0
  • Nombre de façades 3

Informations sur l'extérieur

  • Surface parcellaire 486,00 m²
  • Garage 2

Informations sur l'intérieur

  • Surface habitable 545,00 m²
  • Cuisine Non
  • Type de cuisine Sans
  • Nombre de chambres 11
  • Nombre de salle de bain 1
  • Salle de douche 4
  • Type d'énergie du chauffage Aucun

Informations financières

  • Revenu cadastral 1545,00 €