Immeuble avec 2 appartements et 2 garages

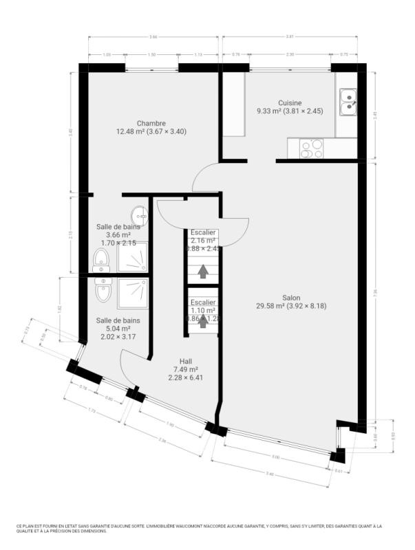
Immeuble de rapport à rafraîchir (en ordre de permis d'urbanisme) composé de 2 logements 1 chambre disposant chacun d'un garage privatif situé à Visé proche des accès autoroutiers et des commerces. Chaque logement (+/- 65m² et 81m² d'après PEB) dispose d'un séjour (+/- 27 et 29m²), d'une cuisine (+/- 9m²), d'une salle de douches (douche, lavabo, WC) et d'une chambre (+/- 12m² et 14 m²). Chauffage central commun au mazout, châssis simple et double vitrage bois. Les deux logements et le garage de gauche sont actuellement loués +/- 600€/mois, le garage de droite est loué 75€/mois. R.C.: 1.202€, Superficie totale (terrain): 70m². Permis PEB: G disponibles sur demande! Aucune garantie d'un point de vue sécurité, pompier, etc. ne peut être donnée, l'immeuble étant vendu en l'état. Informations données à titre indicatif et non contractuelles. Opportunité à saisir! www.waucomont.be
Classe énergétique Énergie spécifique Énergie totale Émission de CO2 PEB No.
G 576kWh/m².an 46377kWh.an 144kg CO2/an 20240416013839

Informations générales

  • Type de bien Immeubles de rapport
  • Sous-catégorie Immeuble
  • Disponibilité À l'acte
  • Etat À rafraîchir
  • Année de construction 1959
  • Nombre d'étages 0
  • Nombre de façades 2

Informations sur l'extérieur

  • Surface parcellaire 70,00 m²
  • Garage 2

Informations sur l'intérieur

  • Surface habitable 146,00 m²
  • Cuisine Oui
  • Type de cuisine Aménagée
  • Nombre de chambres 2
  • Salle de douche 1
  • Type d'énergie du chauffage Mazout

Informations financières

  • Revenu cadastral 1202,00 €