Immeuble comprenant 2 apparts, jardin, 2 garages

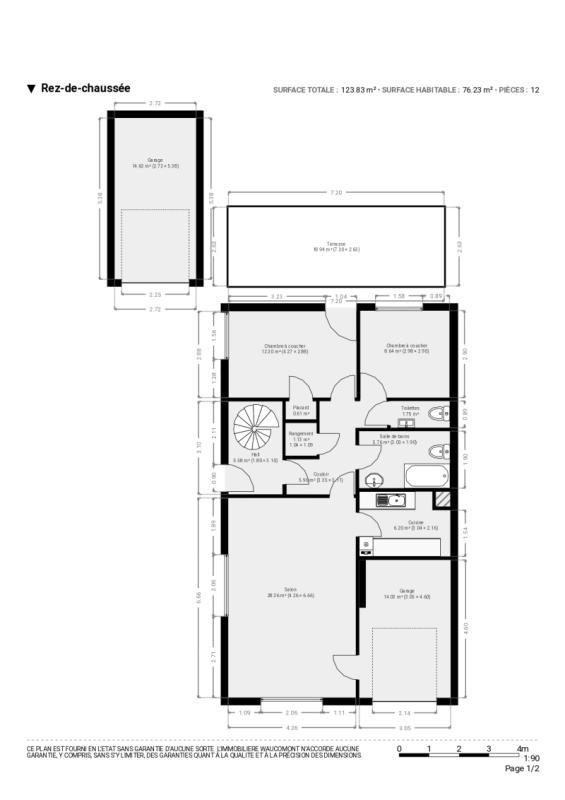
Immeuble comprenant deux logements à moderniser (+/- 213 m² d'après PEB) avec R.C. distincts, jardin et deux garages, idéalement situé à Liège, à proximité de Cointe, des axes routiers et des commodités. Le bien est composé comme suit : Rez-de-chaussée : Appartement comprenant hall d’entrée, espace rangement, salon (+/- 28m²), cuisine aménagée, 2 chambres (+/- 12,m² et 8,5 m²) dont une avec accès vers l’extérieur, salle de bains ( baignoire, lavabo, wc), toilette indépendante et garage. 1er étage : Appartement comprenant hall d’entrée, lumineux salon et salle à manger, cuisine aménagée, 2 chambres (+/- 10 m², 8.5 m²), bureau, salle de bains (baignoire, wc, lavabo et toilette indépendante). Terrasse, jardin et garage indépendant. Châssis double vitrage bois, chaudière gaz, 2 compteurs électriques. PEB : D et E sur demande. R.C. : 1.803€, superficie totale (terrain): 419m². Belle opportunité d'investissement ! Informations données à titre indicatif et non contractuelles. www.waucomont.be
Classe énergétique Énergie spécifique Énergie totale Émission de CO2 PEB No.
E 374kWh/m².an 40461kWh.an 68kg CO2/an 20240906000248

Informations générales

  • Type de bien Immeubles de rapport
  • Sous-catégorie Immeuble
  • Disponibilité À l'acte
  • Etat À rafraîchir
  • Nombre d'étages 0
  • Nombre de façades 3

Informations sur l'extérieur

  • Surface parcellaire 419,00 m²
  • Garage 2
  • Terrasse 1
  • Surface terrasse 1 18 m²

Informations sur l'intérieur

  • Surface habitable 213,00 m²
  • Cuisine Oui
  • Type de cuisine Aménagée
  • Nombre de chambres 4
  • Nombre de salle de bain 2
  • Type d'énergie du chauffage Gaz

Informations financières

  • Revenu cadastral 1803,00 €