Immeuble de rapport de 2 logements (Dalhem)

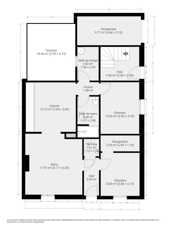
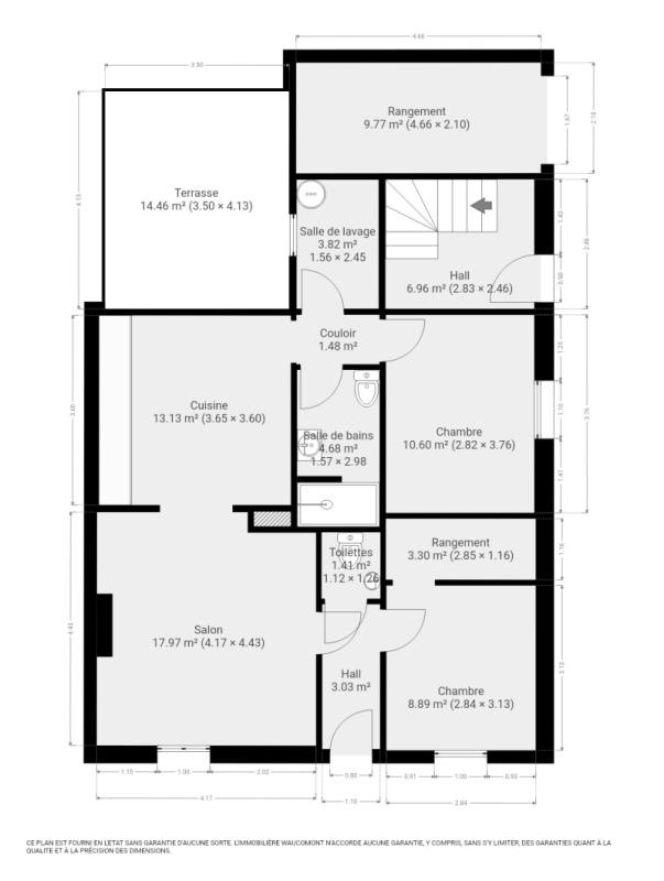
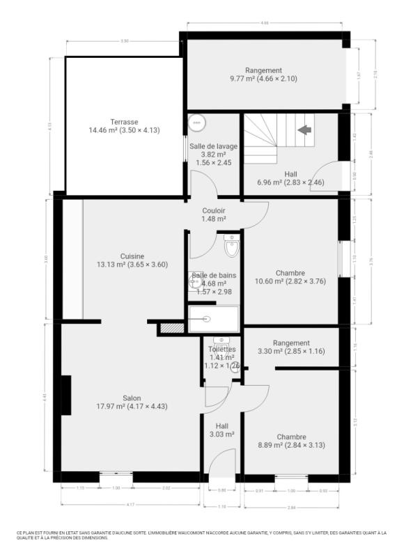
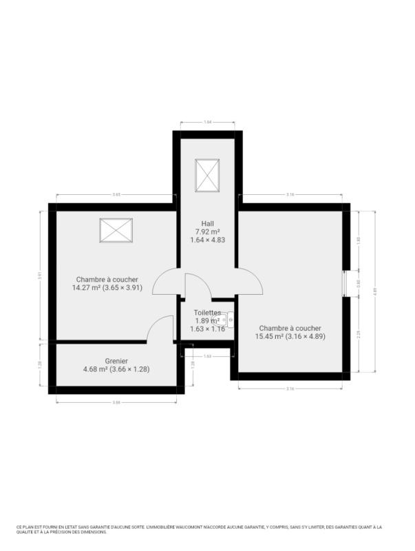
Immeuble de rapport comprenant 2 logements (+/- 86m² et 131m² d'après PEB) 2 et 3 chambres situé dans l'agréable village de Dalhem. Il est composé au rez-de-chaussée d'un appartement (+/- 86m²) avec séjour et cuisine équipée ouverte (frigo, lave-vaisselle, four, taque électrique, hotte, évier), 2 chambres (+/- 8 et 10m²), salle de douches et terrasse. Aux 1er et 2ème étage, un appartement duplex (+/- 131m²) avec spacieux séjour (+/- 36 m²)et cuisine équipée ouverte (frigo, four, lave-vaisselle, taque vitrocéramique, hotte, évier), 3 chambres (+/- 12, 14 et 15m²), buanderie et salle de douches. Châssis double vitrage PVC, chauffage électrique via accumulateurs et radiateurs directs, 2 compteurs électriques, 1 compteur d'eau avec décompteur pour le duplex. Les appartements sont actuellement loués: Rdc 620€/mois (avec provision comprise de 30€ pour l'eau) et 680€/mois (avec provision comprise de 30€ pour l'eau). R.C.: 817€. PEB : E et E, E. Spec. : 392 kWh/m².an, E. totale: 33.712 kWh/an, n° 20241227002712. Informations données à titre indicatif et non contractuelles. Idéal pour investissement ! Opportunité à saisir !! www.waucomont.be
Classe énergétique Énergie spécifique Énergie totale Émission de CO2 PEB No.
E 392kWh/m².an 33712kWh.an 101kg CO2/an 20241227002712

Informations générales

  • Type de bien Immeubles de rapport
  • Sous-catégorie Immeuble
  • Disponibilité Date à convenir
  • Etat Bon
  • Nombre d'étages 0
  • Nombre de façades 3

Informations sur l'extérieur

  • Surface parcellaire 157,00 m²
  • Terrasse 1
  • Surface terrasse 1 14 m²

Informations sur l'intérieur

  • Surface habitable 217,00 m²
  • Cuisine Oui
  • Type de cuisine Equipée
  • Nombre de chambres 5
  • Salle de douche 2
  • Type d'énergie du chauffage Electricité

Informations financières

  • Revenu cadastral 817,00 €