Immeuble de rapport en bordure de Liège!

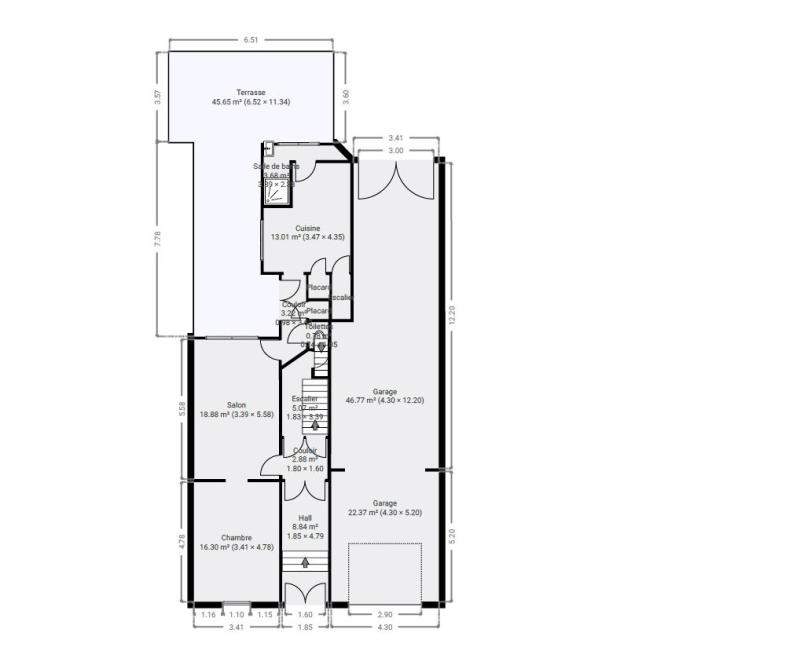
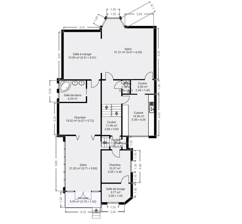
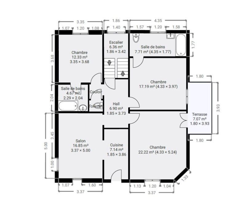
Bel immeuble de rapport (+/-344m² d’après PEB) idéalement situé dans un quartier en plein développement entre Liège et Herstal (Coronmeuse). Au rez-de-chaussée : un appartement (+/- 67m² d’après PEB) avec un salon/salle à manger donnant avec un accès vers un cour privative, une cuisine équipée, une chambre et une salle de douches. Au 1er étage : un appartement (+/- 162m² d’après PEB) comprenant un séjour avec feu ouvert, une cuisine hyper-équipée, 2 chambres, un wc indépendant, 1 salle de bains, une buanderie et une véranda donnant sur un balcon extérieur. Au 2ème étage : un appartement (+/-115m² d’après PEB) avec séjour, cuisine ouverte, 2 chambres, 2 salle de bains, un balcon et une terrasse. L’immeuble dispose également de caves, d'un garage, d'un atelier et d'un parking à l’arrière du bâtiment. Chauffage central mazout avec calorimètre, châssis double vitrage PVC. Revenu locatif mensuel : 2.445€/mois. Toutefois, aucune garantie d'un point de vue urbanistique, pompier, ne peut être donnée, l'immeuble étant vendu en l'état. PEB Fet G disponibles sur demande. R.C.: 1.549€, Superficie totale (terrain): 830m². Informations données à titre indicatif et non contractuelles. A découvrir ! www.waucomont.be

Classe énergétique Énergie spécifique Énergie totale Émission de CO2 PEB No.
G 591kWh/m².an 67810kWh.an 146kg CO2/an 20230917010664

Informations générales

  • Type de bien Immeubles de rapport
  • Sous-catégorie Immeuble
  • Etat Bon
  • Nombre d'étages 2
  • Nombre de façades 3

Informations sur l'extérieur

  • Surface parcellaire 830,00 m²
  • Garage 4
  • Parking 4
  • Environnement Urbain
  • Terrasse 1
  • Surface terrasse 1 46 m²

Informations sur l'intérieur

  • Surface habitable 344,00 m²
  • Cuisine Oui
  • Type de cuisine Aménagée
  • Nombre de chambres 5
  • Nombre de salle de bain 3
  • Type d'énergie du chauffage Mazout

Informations financières

  • Revenu cadastral 1549,00 €