Immmeuble 2 appartments 3 chambres, 3 garages (dt 1 double)

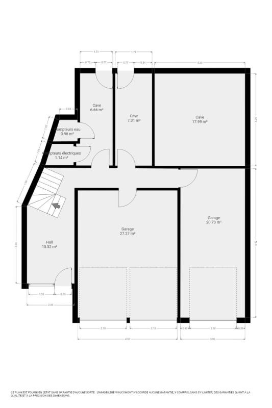
Bel immeuble bien entretenu comprenant 2 appartements loués (avec R.C. distincts) avec 3 chambres, balcon, jardin commun et 3 garages (dont un pour 2 voitures) situé à proximité de Coronmeuse (Blvd Zénobe Gramme) et de toutes ses commodités. Situés aux 1er et 2ème étages, chaque appartement (+/- 113m² d'après PEB) comprend notamment un hall d'entrée, un agréable séjour (+/- 36m²), une cuisine-semi équipée (taque vitrocéramique, frigo, four, lave vaisselle, hotte), 3 chambres (+/- 10, 10 et 13m²), une salle de bains (baignoire,double lavabo), une toilette indépendante et une terrasse. Chaque appartement dispose également d'une cave individuelle et de garages (garage 2 véhicules en enfilade pour le 1er étage et double garage pour le 2ème étage) et d'un accès au jardin commun. Au rez-de-chaussée se trouvent également une buanderie commune, et des caves comprenant les compteurs. Les appartements sont respectivement loués 722 et 750 €/mois. Chauffage central gaz (chaudière individuelles), châssis simple et double vitrage aluminium, compteurs individuels (eau, gaz, électricité). PEB D disponibles sur demande. R.C. global: 2.374 € (1.229 € et 1.145 €). Aucune garantie au niveau des normes pompiers ne peut être donnée. Informations données à titre indicatif et non contractuelles.Idéal pour investissement! Belle situation! www.waucomont.be.
Classe énergétique Énergie spécifique Énergie totale Émission de CO2 PEB No.
D 288kWh/m².an 32588kWh.an 6013kg CO2/an 202102220046410

Informations générales

  • Type de bien Immeubles de rapport
  • Sous-catégorie Immeuble
  • Disponibilité Date à convenir
  • Etat Bon
  • Nombre d'étages 2
  • Nombre de façades 3

Informations sur l'extérieur

  • Surface parcellaire 238,00 m²
  • Garage 3
  • Terrasse 1
  • Surface terrasse 1 7 m²

Informations sur l'intérieur

  • Surface habitable 226,00 m²
  • Cuisine Oui
  • Type de cuisine Aménagée
  • Nombre de chambres 6
  • Nombre de salle de bain 1
  • Salle de douche 1
  • Type d'énergie du chauffage Gaz

Informations financières

  • Revenu cadastral 2374,00 €