Maison 3ch avec studio indépendant à Devant-le-Pont à Visé

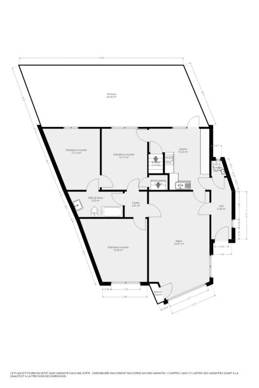
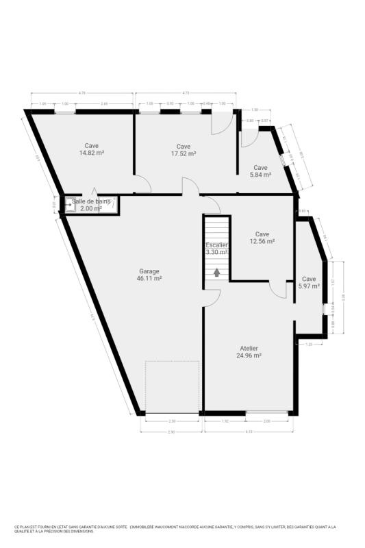
Jolie maison bel étage 3 chambres à rafraîchir (+/- 136m² d'après PEB) et studio indépendant (avec permis obtenu pour sa création) (+/- 49m² d'après PEB) profitant d'une situation idéale à proximité des commodités et axes autoroutiers à Devant-le-Pont. Elle se compose comme suit: Sous-sol: garage (+/- 46m²) avec porte motorisée, caves (+/- 42m²), studio comprenant séjour, cuisine aménagée, 1 chambre et salle de douches et jardin. Rez-de-chaussée: hall d'entrée, lumineux séjour (+/- 25m²), cuisine semi-équipée (frigo, taque électrique et gaz, hotte, four, évier), 3 chambres (2 de +/- 12m² et une de +/-15m²), salle de bains (baignoire,lavabo, wc) et spacieuse terrasse couverte (+/- 44m²). Combles de rangement. Châssis double vitrage bois/PVC/aluminium, chauffage central au mazout. Aucune garantie d'un point de vue pompiers ne peut être donnée, le bien étant vendu en l'état. R.C.: 1.362€. 2 PEB G disponibles sur demande. Idéal pour investissement ou logement kangourou! Superbe opportunité! Informations données à titre indicatif et non contractuelles. www.waucomont.be
Classe énergétique Énergie spécifique Énergie totale Émission de CO2 PEB No.
G 871kWh/m².an 43030kWh.an 215kg CO2/an 20260316033444

Informations générales

  • Type de bien Immeubles de rapport
  • Sous-catégorie Immeuble
  • Disponibilité À l'acte
  • Etat À rafraîchir
  • Nombre d'étages 0
  • Nombre de façades 4

Informations sur l'extérieur

  • Surface parcellaire 486,00 m²
  • Garage 1
  • Parking 1
  • Terrasse 1
  • Surface terrasse 1 44 m²

Informations sur l'intérieur

  • Surface habitable 185,00 m²
  • Cuisine Oui
  • Type de cuisine Aménagée
  • Nombre de chambres 4
  • Nombre de salle de bain 1
  • Salle de douche 1
  • Type d'énergie du chauffage Mazout

Informations financières

  • Revenu cadastral 1362,00 €