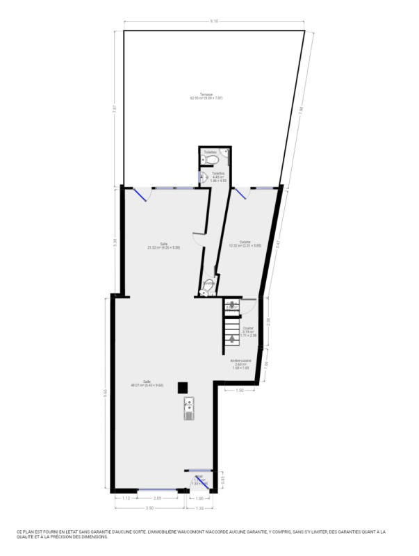
Maison de commerce avec cour bien située sur un axe fréquenté de Jupille-sur-Meuse et proche de toutes les commodités. Elle se compose comme suit : Sous-sol: 2 caves (+/- 15 et 16 m²). Rez-de-chaussée commercial (ancien café) comprenant une spacieuse salle à l'avant (+/- 69 m²) avec bar et accès une cour pouvant éventuellement être aménagé en terrasse (+/- 62 m²), une cuisine +/- 12 m² avec arrière-cuisine et 2 toilettes indépendantes. 1er étage à aménager comprenant actuellement un hall (avec placard intégré), 2 pièces (+/- 14 et 16m²), une salle de bains (baignoire, lavabo, WC). Combles éventuellement amménageables +/- 25 m². Chauffage central au gaz, châssis simple et double vitrage au rez-de-chaussée (avec volets en façade avant), et simple vitrage (PVC et alluminium) au 1er étage. R.C. actuel: 1.021€ (toutefois ce dernier sera probablement majoré car le R.C. actuel ne comprend pas la cour). Superficie totale (terrain): 151m². Nombreuses possibilités d'aménagements! Belle situation! Informations données à titre indicatif et non contractuelles. www.waucomont.be
Informations générales
Type de bien
Immeubles de rapport
Sous-catégorie
Immeuble
Disponibilité
À l'acte
Etat
À rénover
Nombre d'étages
0
Nombre de façades
2
Informations sur l'extérieur
Surface parcellaire
151,00 m²
Terrasse
1
Surface terrasse 1
63 m²
Informations sur l'intérieur
Cuisine
Oui
Type de cuisine
Aménagée
Nombre de chambres
2
Type d'énergie du chauffage
Gaz
Partager ce bien sur les réseaux sociaux
Nous utilisons des cookies pour vous offrir la meilleure expérience sur notre site. Vous pouvez en savoir plus sur les cookies que nous utilisons ou les désactiver dans les
paramètres de cookies