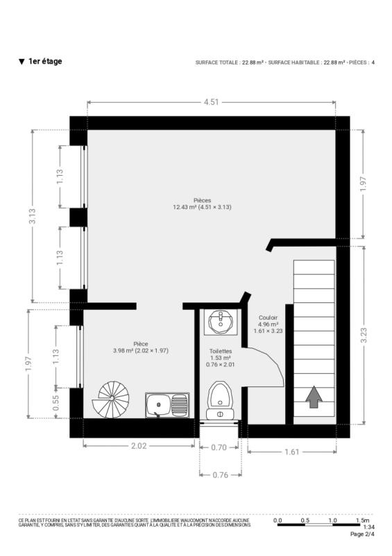
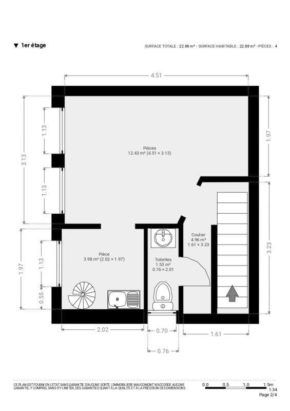
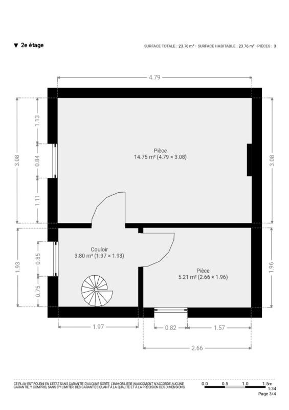
Maison de commerce idéalement située au centre d'Aywaille, dans la rue commerçante (Place Joseph Thiry ) comprenant un rez-de-chaussée commercial et des étages emménageables. Le bien se compose comme suit: Sous-sol : une cave (+/- 15 m²) et un espace chaufferie. Rez-de-chaussée : une agréable surface commerciale avec partie réserve (+/- 26 m²) .1er étage: palier, une grande pièce (+/-12 m² ), un bureau (+/- 4 m²). 2ème étage: palier, une grande pièce (+/- 15 m² ), un bureau ( +/- 5 m² ). Combles à aménager. R.C. : 1.060€, Superficie totale terrain : 27 m². Climatisation réversible pour le commerce, châssis doubles vitrages PVC. Situation idéale ! Belle visibilité. Informations données à titre indicatif et non contractuelles. www.waucomont.be
Informations générales
Type de bien
Immeubles de rapport
Sous-catégorie
Immeuble
Etat
Bon
Nombre d'étages
0
Nombre de façades
2
Informations sur l'extérieur
Surface parcellaire
27,00 m²
Environnement
Urbain
Informations sur l'intérieur
Surface habitable
93,00 m²
Cuisine
Non
Type de cuisine
Sans
Type d'énergie du chauffage
Pompe à chaleur
Informations financières
Revenu cadastral
1060,00 €
Partager ce bien sur les réseaux sociaux
Nous utilisons des cookies pour vous offrir la meilleure expérience sur notre site. Vous pouvez en savoir plus sur les cookies que nous utilisons ou les désactiver dans les
paramètres de cookies