Rapport: 2 apparts 3ch, cabinet médical. Poss. rachat parts soc.!

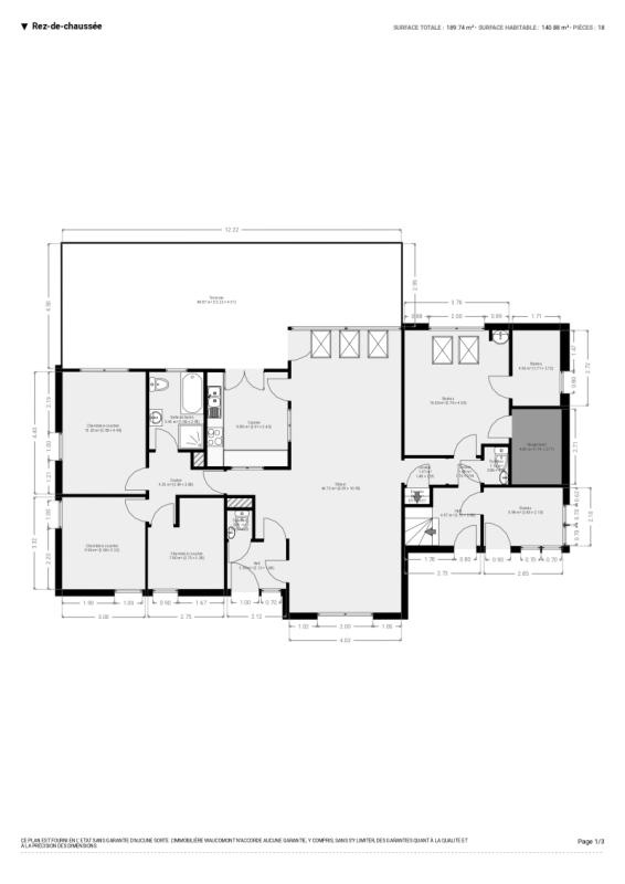
Bien de rapport comprenant 2 logements (2 appartements 3 chambres) et une partie professionnelle (actuellement cabinet médical avec espace polyvalent au 1er étage aménagé en studio) convertible en 3ème logement suivant permis du 12 décembre 2022. Facilement accessible et proche de toutes les commoditités d'Herstal et de Vivegnis (commerces, bus, axes autoroutires, écoles,...), le bien offre une belle visibilité. Possibilité d'achat des parts de la société propriétaire du bâtiment ! Le bien comprend 2 appartements situés au rdc et au 1er étage. Chaque appartement (accessible via entrée indépendante) comprend nottament un spacieux séjour, une cuisine équipée, 3 chambres et une salle de bains. L'appartement du rdc dispose également d'une très grande terrasse et d'un jardin. Située au rdc, la partie professionnelle avec entrée indépendante (actuelllement cabinet médical) comprend: hall d'entrée avec toilette, salle d'attente (+/- 6m²), cabinet médical (+/- 16m²) avec lavabo et un espace polyvalent au 1er étage (actuellement aménagé en studio avec cuisine semi-équipée) loué 550€/mois charges comprises. Cette partie professionnelle offre de nombreuses possibilités (profession libérale ou permis obtenu en 2022 pour en faire un 3ème logement). Le bien dispose de caves et 2 garages au sous-sol. Chauffage central mazout (avec calorimètres), citerne d'eau de pluie, châssis double vitrage, volets (en partie), sysytème d'alarme. PEB: C, C et D disponibles sur demande. R.C.: 2.040€. Superficie totale terrain: +/- 1.026m². Belle situation et visibilité! Infiormatsions données à titre indicatif et non contractulles. www.waucomont.be

Classe énergétique Énergie spécifique Énergie totale Émission de CO2 PEB No.
D 267kWh/m².an 6395kWh.an 66kg CO2/an 20170821008994

Informations générales

  • Type de bien Immeubles de rapport
  • Sous-catégorie Immeuble
  • Disponibilité Date à convenir
  • Etat Très bon
  • Année de construction 1997
  • Nombre d'étages 1
  • Nombre de façades 4

Informations sur l'extérieur

  • Surface parcellaire 1026,00 m²
  • Garage 2
  • Terrasse 1
  • Surface terrasse 1 48 m²

Informations sur l'intérieur

  • Surface habitable 240,00 m²
  • Cuisine Oui
  • Type de cuisine Equipée
  • Nombre de chambres 6
  • Nombre de salle de bain 3
  • Type d'énergie du chauffage Mazout

Informations financières

  • Revenu cadastral 2040,00 €