Spacieuse habitation ( +/- 417 m²) actuellement 3 logements

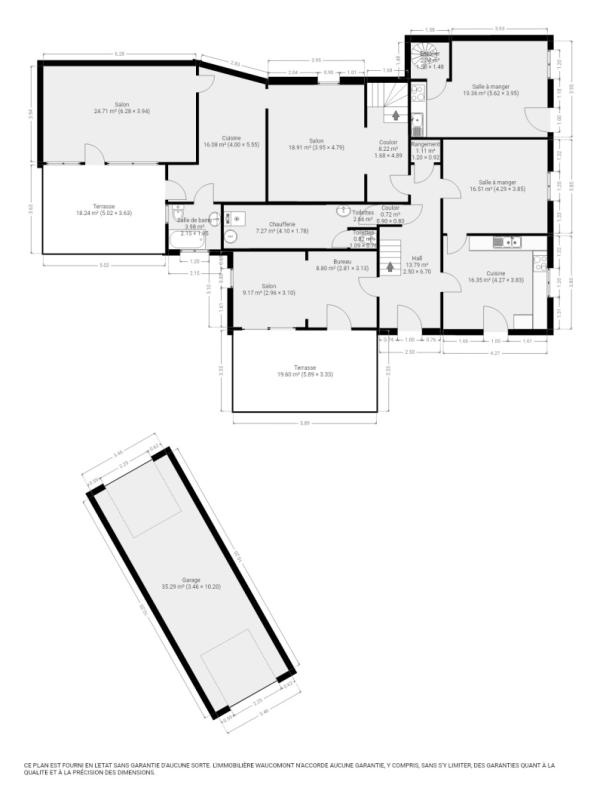
! OPTION ! OPTION ! Spacieuse habitation (+/- 417m² d'après PEB) actuellement divisée en 3 logements offrant de multiples possibilités d'aménagement et située dans un agréable endroit, le long du halage, à proximité de l'Ile Robinson. Le bien se compose comme suit: Logement 1 (maison +/- 231m² d'après PEB ) comprend notamment: séjour, cuisine équipée, 3 chambres (2 de 16m² et 1 de 22 m²), salle de bains, jardin et garage. Logement 2 (+/- 113m² d'après PEB) comprend nottament:séjour avec cuisine ouverte , salle à manger (ou chambre) (+/-24m²), salle de bains,1 chambre (+/-17m²). Logement 3 (+/- 73m² d'après PEB) comprend notamment: séjour avec cuisine ouverte, salle de bains et 2 chambres (+/- 15 et 23m²). Châssis simple et double vitrage bois/PVC, chauffage central commun mazout (pour la maison et logement 2) et chauffage gaz via poêle pour le logement 3, 14 panneaux photovoltaïques. Le 2ème logement est actuellement loué 444€/mois hors charges et le 3ème est loué 550€/ mois charges comprises. Le bien repris comme une maison unifamiliale à la matrice cadastrale, aucune garantie ne peut être donnée d'un point de vue urbanistique, le bien étant vendu en l'état. PEB: D et G disponibles sur demande. R.C.: 1.170€, Superficie totale (terrain): 780m². Informations données à titre indicatif et non contractuelles. Belle situation! Superbe opportunité! www.waucomont.be

Classe énergétique Énergie spécifique Énergie totale Émission de CO2 PEB No.
G 578kWh/m².an 65502kWh.an 135kg CO2/an 20250220023995

Informations générales

  • Type de bien Immeubles de rapport
  • Sous-catégorie Immeuble
  • Disponibilité Date à convenir
  • Etat Bon
  • Nombre d'étages 0
  • Nombre de façades 3

Informations sur l'extérieur

  • Surface parcellaire 780,00 m²
  • Garage 1
  • Terrasse 1
  • Surface terrasse 1 37 m²

Informations sur l'intérieur

  • Surface habitable 417,00 m²
  • Cuisine Oui
  • Type de cuisine Aménagée
  • Nombre de chambres 6
  • Nombre de salle de bain 3
  • Salle de douche 1
  • Type d'énergie du chauffage Mazout

Informations financières

  • Revenu cadastral 1170,00 €