Agréable maison 3ch, terrasse et jardinet à rafraîchir

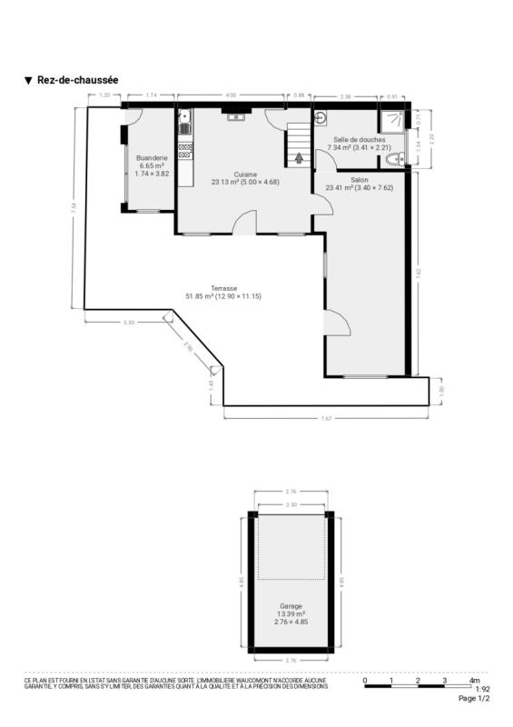
Idéalement située à Cheratte Hauteur, agréable maison semi-mitoyenne à rafraîchir/rénover (+/- 140m² d’après PEB) 3 chambres avec terrasse, petit jardinet et garage. Elle se compose comme suit : Rez-de-chaussée : cuisine semi-équipée (taque au gaz, frigo, four, hotte, évier, )(+/- 23m²), lumineux séjour (+ /- 23m²), salles de douche (douche, lavabo, wc), buanderie (+/- 6m²), grande terrasse, petit jardinet, place de parking et un garage non attenant qui se trouve en face (+/- 13m²). 1er étage : hall de nuit, 3 chambres (+ /- 12, 15 et 18m²), bureau/dressing (+/- 5m²). Châssis double vitrage PVC avec volets électrique en partie, 3 poêles à gaz. PEB : E, E. Spec: 421 kWh/m2.an, E totale : 59 038kWh/an, n° 20250814013805. R.C. : 446€. Superficie totale (terrain) : 207m². A découvrir au plus vite ! Idéal pour 1er achat ou investissement ! Informations données à titre indicatif et non-contractuelle. www.waucomont.be

Classe énergétique Énergie spécifique Énergie totale Émission de CO2 PEB No.
E 421kWh/m².an 59038kWh.an 77kg CO2/an 20250814013805

Informations générales

  • Type de bien Maisons / Propriétés
  • Sous-catégorie Maison
  • Disponibilité À l'acte
  • Etat À rafraîchir
  • Nombre d'étages 0
  • Nombre de façades 3

Informations sur l'extérieur

  • Surface parcellaire 207,00 m²
  • Garage 1
  • Parking 1
  • Terrasse 1
  • Surface terrasse 1 50 m²

Informations sur l'intérieur

  • Surface habitable 140,00 m²
  • Cuisine Oui
  • Type de cuisine Aménagée
  • Nombre de chambres 3
  • Salle de douche 1
  • Type d'énergie du chauffage Gaz

Informations financières

  • Revenu cadastral 446,00 €