Agréable maison 4ch sur vaste parcelle 1.723 m²

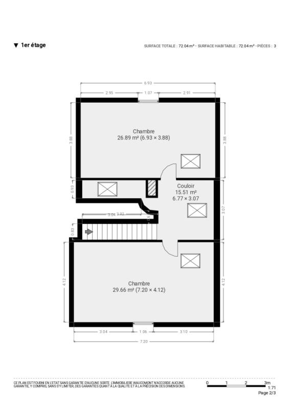
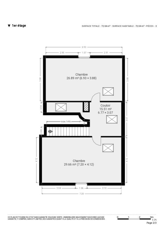
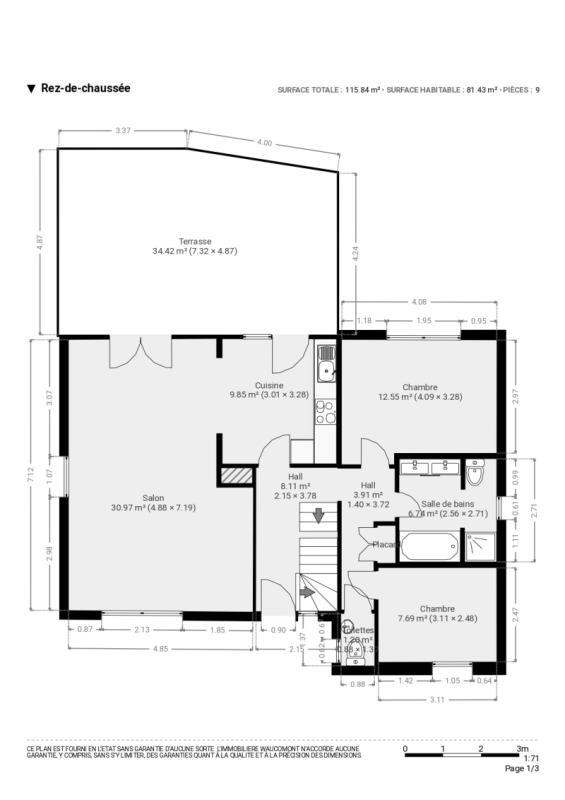
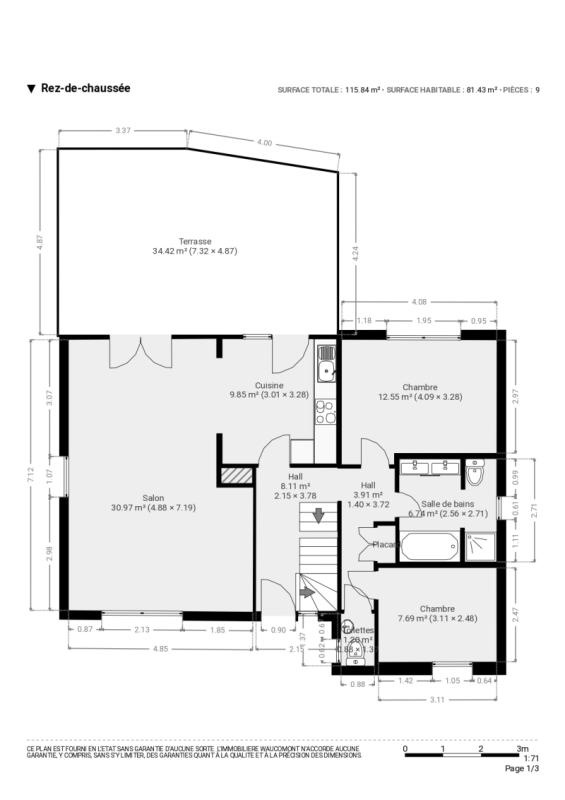
OPTION! OPTION! Agréable et spacieuse maison (+/- 254m² d'après PEB) 4 chambres avec terrasse et jardin orienté ouest idéalement située dans un cadre calme et résidentiel, à Housse. Elle se compose comme suit: Sous-sol: 2 garages (+/- 20 et 34m²) et caves (+/- 45m²) dont une, sommairement aménagée en salle de douches. Rez-de-chaussée: hall d'entrée, beau séjour (+/- 39m²) avec cuisine ouverte équipée (taque vitrocéramique, hotte, four, lave-vaisselle, frigo, évier), 2 chambres dont 1 petite (+/- 7 et 12m²), une salle de bains (baignoire, douche, double vasque, wc), toilette indépendante, terrasse (+/- 24m²) et jardin. 1er étage: hall de nuit et 2 chambres (+/- 26 et 29m²). Chauffage central au mazout, châssis double vitrage bois, installation photovoltaïques. R.C.: 832€, Superficie totale (terrain): 1.723m². PEB: C, E Spéc: 253 kWh/m².an, E totale: 64.196 kWh/an, n° 20250710018280. Informations données à titre indicatif et non contractuelles. Belle situation! A ne pas manquer! www.waucomont.be
Classe énergétique Énergie spécifique Énergie totale Émission de CO2 PEB No.
C 253kWh/m².an 64196kWh.an 62kg CO2/an 20250710018280

Informations générales

  • Type de bien Maisons / Propriétés
  • Sous-catégorie Maison
  • Disponibilité À l'acte
  • Etat Bon
  • Année de construction 1987
  • Nombre d'étages 0
  • Nombre de façades 4

Informations sur l'extérieur

  • Surface parcellaire 1723,00 m²
  • Garage 1
  • Terrasse 1
  • Surface terrasse 1 34 m²

Informations sur l'intérieur

  • Surface habitable 254,00 m²
  • Cuisine Oui
  • Type de cuisine Equipée
  • Nombre de chambres 4
  • Nombre de salle de bain 1
  • Salle de douche 2
  • Type d'énergie du chauffage Mazout

Informations financières

  • Revenu cadastral 832,00 €