Agréable maison avec cours et garage à Queue du Bois

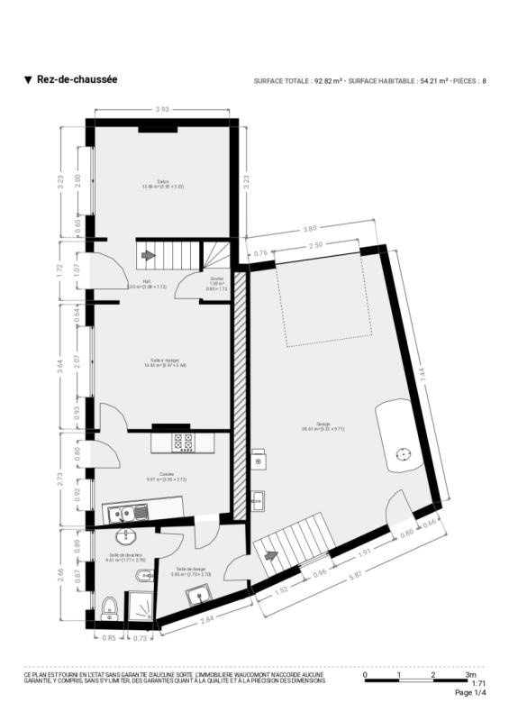
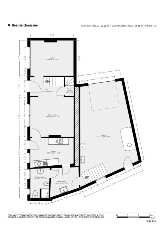
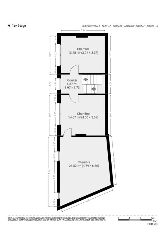
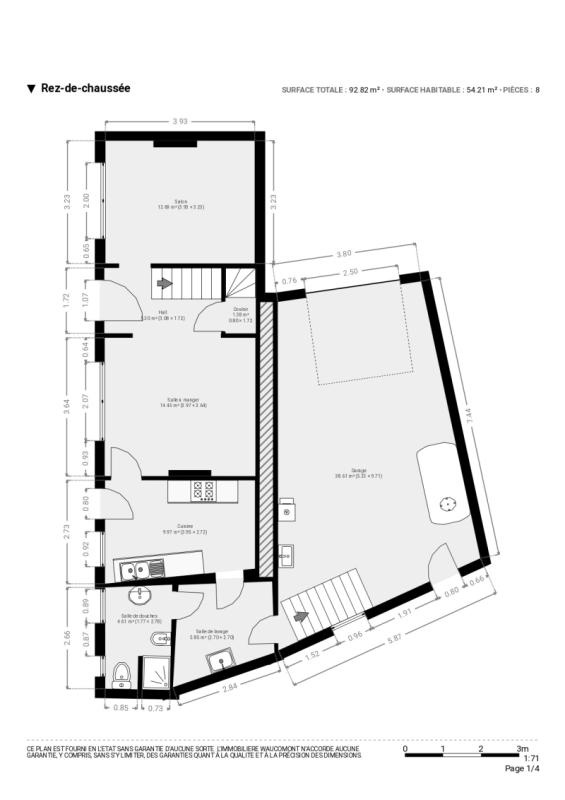
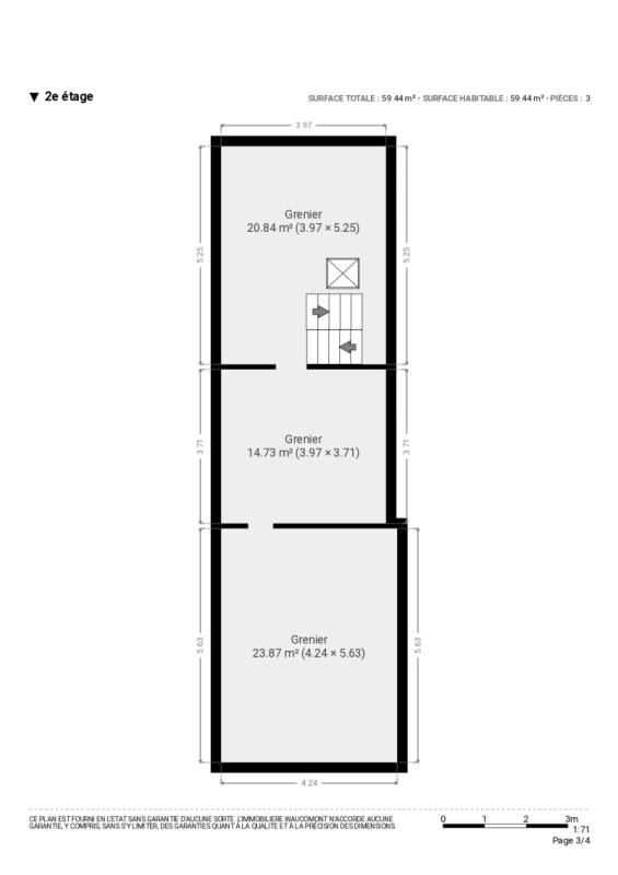
! OPTION ! OPTION ! OPTION ! Agréable maison à rafraîchir (+/- 150 m² d'après PEB) avec cour et garage idéalement située dans un quartier calme et verdoyant à Queue-du-Bois. Elle se compose comme suit : Sous-sol : Cave. Rez-de-chaussée : hall d'entrée, salon (+/- 12 m²), salle à manger, cuisine équipée (four, taque, hotte, évier et frigo), buanderie donnant accès à la salle de douches (douche, lavabo, toilette et bidet) et au garage. 1er étage : Hall de nuit, 3 chambres dont une spacieuse avec un dressing (+/- 13, 14 et 23m²). 2ème étage: combles à aménager offrant de nombreuses possibilités. Le bien dispose également d'un grand garage. Chauffage central au mazout, châssis double vitrages bois avec volets (sauf dans la grande chambre). R.C. : 359 €, Superficie totale (terrain) : 187m². PEB : F, E Spéc: 458 kWh/m².an, E totale: 68.581 kWh/an, n° 20250724003609. Idéal pour 1er achat! Belle situation! Informations données à titre indicatif et non contractuelles. www.waucomont.be
Classe énergétique Énergie spécifique Énergie totale Émission de CO2 PEB No.
F 458kWh/m².an 68581kWh.an 16998kg CO2/an 20250724003609

Informations générales

  • Type de bien Maisons / Propriétés
  • Sous-catégorie Maison
  • Disponibilité À l'acte
  • Etat À rafraîchir
  • Nombre d'étages 2
  • Nombre de façades 4

Informations sur l'extérieur

  • Surface parcellaire 187,00 m²
  • Garage 1

Informations sur l'intérieur

  • Surface habitable 150,00 m²
  • Cuisine Oui
  • Type de cuisine Equipée
  • Nombre de chambres 2
  • Salle de douche 1
  • Type d'énergie du chauffage Mazout

Informations financières

  • Revenu cadastral 359,00 €