Agréable maison mitoyenne 3ch avec terrasse

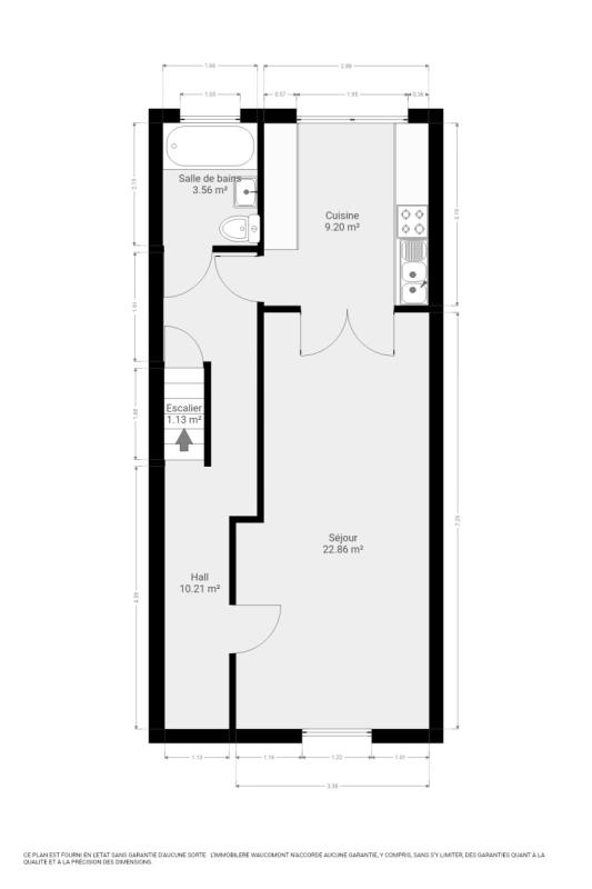
OPTION ! OPTION ! OPTION ! Agréable maison mitoyenne (+/- 134 m² d'après PEB) 3 chambres (possibilité 4) avec cour et terrasse idéalement située à Bressoux à proximité de toutes les commodités. Elle se compose comme suit : Sous-sol : spacieuses caves (+/- 40m²) et une cour (+/- 11m²). Rez-de-chaussée : hall d'entrée, agréable séjour (+/- 22m²), cuisine aménagée +/- 9m² (taque au gaz, hotte, évier) et une salle de bains (baignoire, lavabo, wc). 1er étage : hall de nuit, 2 chambres (+/- 10 et 16m²) et une terrasse (+/- 15m²). 2ème étage : grenier actuellement aménagé en grande chambre de +/- 28m² (possibilité chambre supplémentaire). Châssis double vitrage PVC avec volets en partie, chauffage central au mazout. R.C.: 562€, Superficie totale parcelle : 72m². PEB : D, E Spéc: 436 kWh/m².an, E totale : : 58.426 kWh/an, n°: 20250930023683. Informations données à titre indicatif et non contractuelles. Belle opportunité ! Proche des commodités ! www.waucomont.be
Classe énergétique Énergie spécifique Énergie totale Émission de CO2 PEB No.
F 436kWh/m².an 58426kWh.an 108kg CO2/an 20250930023683

Informations générales

  • Type de bien Maisons / Propriétés
  • Sous-catégorie Maison
  • Disponibilité À l'acte
  • Etat À rafraîchir
  • Année de construction 1919
  • Nombre d'étages 0
  • Nombre de façades 2

Informations sur l'extérieur

  • Surface parcellaire 72,00 m²
  • Parking 2
  • Environnement Urbain
  • Terrasse 1
  • Surface terrasse 1 15 m²

Informations sur l'intérieur

  • Surface habitable 134,00 m²
  • Cuisine Oui
  • Type de cuisine Aménagée
  • Nombre de chambres 3
  • Nombre de salle de bain 1
  • Type d'énergie du chauffage Mazout

Informations financières

  • Revenu cadastral 551,00 €