Bungalow 2 à 3ch, garage et jardin à Soumagne

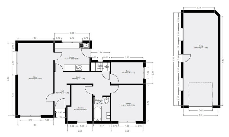
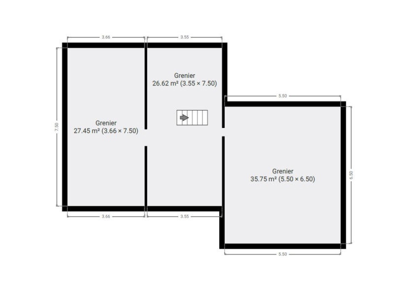
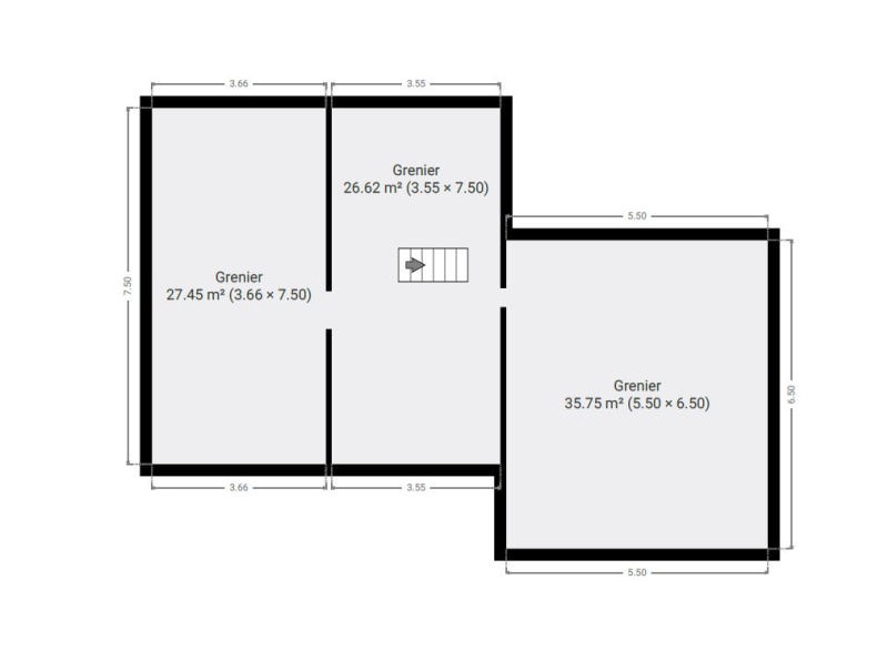
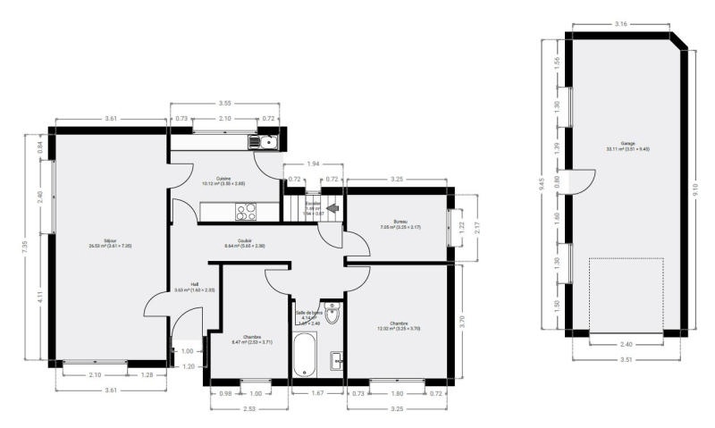
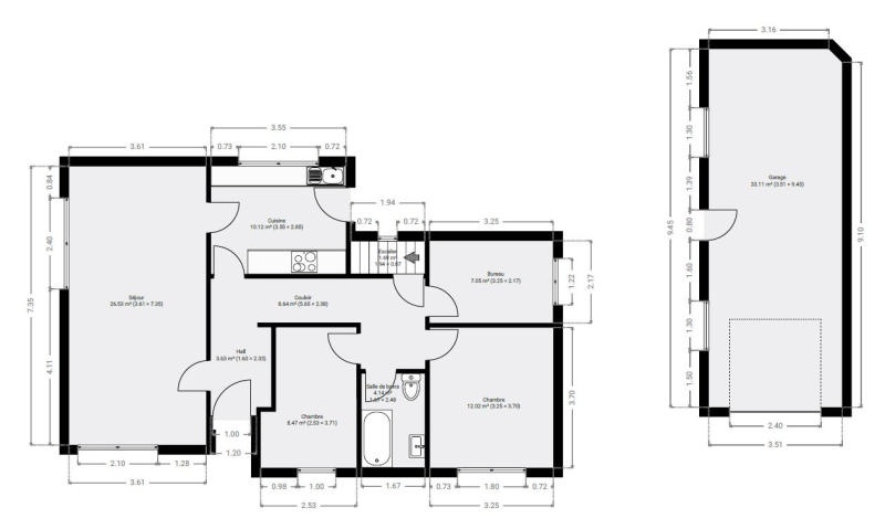
! OPTION ! Charmant bungalow à moderniser (+/- 103m² d'après PEB) 2 à 3 chambres, garage et jardin bien situé à Soumagne dans un agréable quartier proche de toutes les commodités. Il se compose comme suit: Sous-sol: caves, local chaufferie (+/-27m²) et vides ventilés. Rez-de-chaussée : hall d'entrée (+/- 4m²) avec coin vestiaire, lumineux séjour (+/- 26m²), cuisine à aménager +/- 10m² (taque vitrocéramique, lave-vaisselle, frigo, four, hotte) , hall de nuit, 3 chambres dont 2 petites (+/- 7, 8,5, 12m²) ou 2 chambres et un bureau/dressing, salle de bains (baignoire, lavabo, WC). A l’extérieur, vous bénéficierez d’un joli jardin idéalement orienté et d’un garage (+/- 33m²). Au 1er étage : un grenier rangement. Chauffage central au mazout, châssis double vitrage aluminium avec volets, électricité non-conforme. Etat général : à rafraîchir/rénover. PEB: G, E spéc: 890 kWh/m².an, E totale: 91.481 kWh/an, n° 20240819012963. R.C.: 884€, Superficie totale (terrain): 499 m². Informations données à titre indicatif et non contractuelles. Belle situation! Informations données à titre indicatif et non contractuelles. www.waucomont.be

Classe énergétique Énergie spécifique Énergie totale Émission de CO2 PEB No.
G 890kWh/m².an 91481kWh.an 221kg CO2/an 20240819012963

Informations générales

  • Type de bien Maisons / Propriétés
  • Sous-catégorie Bungalow
  • Disponibilité À l'acte
  • Etat À rafraîchir
  • Année de construction 1967
  • Nombre d'étages 0
  • Nombre de façades 4

Informations sur l'extérieur

  • Surface parcellaire 499,00 m²
  • Garage 1
  • Environnement Campagne non-isolée

Informations sur l'intérieur

  • Surface habitable 103,00 m²
  • Cuisine Oui
  • Type de cuisine Aménagée
  • Nombre de chambres 3
  • Nombre de salle de bain 1
  • Type d'énergie du chauffage Mazout

Informations financières

  • Revenu cadastral 884,00 €