Bungalow 2 chambres, garage et grand jardin

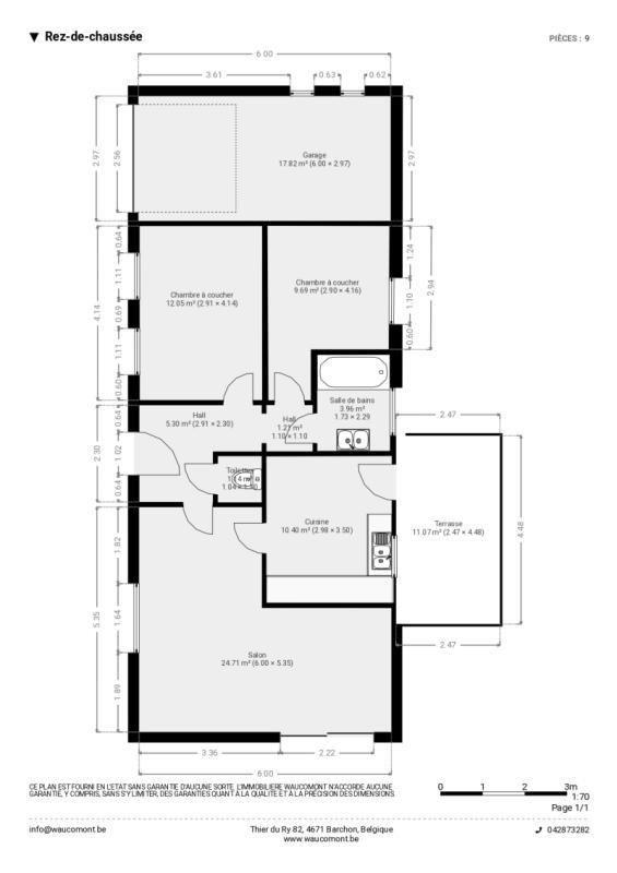
Charmant bungalow à moderniser (+/- 105m² d'après PEB) 2 chambres, garage et jardin bien situé à Saive dans un agréable quartier proche de toutes les commodités. Il se compose comme suit: hall d'entrée (+/- 7m²), lumineux séjour (+/- 25m²), cuisine semi équipée +/- 10m² (cuisinière au gaz, frigo, hotte), 2 chambres (+/- 12m² et 9m²), salle de bains (baignoire, double lavabo). A l’extérieur, vous bénéficierez d’un joli et spacieux jardin idéalement orienté et d’un garage (+/- 18m²). Chauffage central au gaz, châssis double vitrage bois avec volets. Accès aux combles et aux vides ventillés par le garage. Etat général : à rafraîchir. PEB: E, E spéc: 395 kWh/m².an, E totale: 41.300 kWh/an, n° 20250918014163. R.C.: 743€, Superficie totale (terrain): 610 m². Vente soumise à l'autorisation du juge de paix. Informations données à titre indicatif et non contractuelles. Belle situation! I www.waucomont.be

Classe énergétique Énergie spécifique Énergie totale Émission de CO2 PEB No.
E 395kWh/m².an 41300kWh.an 7573kg CO2/an 20250918014163

Informations générales

  • Type de bien Maisons / Propriétés
  • Sous-catégorie Bungalow
  • Disponibilité À l'acte
  • Etat À rafraîchir
  • Année de construction 1980
  • Nombre d'étages 1
  • Nombre de façades 4

Informations sur l'extérieur

  • Surface parcellaire 610,00 m²
  • Garage 1
  • Terrasse 1
  • Surface terrasse 1 8 m²

Informations sur l'intérieur

  • Surface habitable 105,00 m²
  • Cuisine Oui
  • Type de cuisine Aménagée
  • Nombre de chambres 2
  • Nombre de salle de bain 1
  • Type d'énergie du chauffage Gaz

Informations financières

  • Revenu cadastral 610,00 €