Centre de Visé - Maison 2 ch. avec garage et jardin

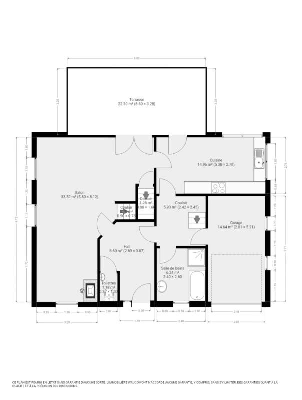
Située à 2 pas du centre de Visé, venez découvrir cette charmante maison 4 façades (+/- 186m² d'après PEB) 2 chambres avec garage et jardin. Elle se compose comme suit: Sous-sol: caves (+/- 14m²). Rez-de-chaussée: hall d'entrée, lumineux séjour (+/- 33m²), cuisine semi-équipée (frigo, taque vitrocéramique, hotte, lave-vaisselle, évier), buanderie, salle de bains (baignoire, douche, lavabo), toilette indépendante, garage (+/- 14m²), terrasse (+/- 22m²) et jardin orienté Sud. 1er étage: hall de nuit, 2 chambres dont une plus petite (+/- 7 et 20m²), bureau/dressing et toilette indépendante. Combles de rangement. Châssis double vitrage bois et PVC, chauffage central au gaz. R.C.: 1.142€, Superficie totale (terrain): 438m². PEB: E, E Spéc: 423 kWh/m².an, E totale: 78.859 kWh/an, n° 20250305022815. Informations données à titre indicatif et non contractuelles. Opportunité à saisir!! Situation idéale proche de toutes les commodités!! www.waucomont.be
Classe énergétique Énergie spécifique Énergie totale Émission de CO2 PEB No.
E 423kWh/m².an 78859kWh.an 77kg CO2/an 20250305022815

Informations générales

  • Type de bien Maisons / Propriétés
  • Sous-catégorie Maison
  • Disponibilité Date à convenir
  • Etat À rafraîchir
  • Année de construction 1975
  • Nombre d'étages 0
  • Nombre de façades 4

Informations sur l'extérieur

  • Surface parcellaire 438,00 m²
  • Garage 1
  • Terrasse 1
  • Surface terrasse 1 22 m²

Informations sur l'intérieur

  • Surface habitable 186,00 m²
  • Cuisine Oui
  • Type de cuisine Aménagée
  • Nombre de chambres 2
  • Nombre de salle de bain 1
  • Salle de douche 1
  • Type d'énergie du chauffage Gaz

Informations financières

  • Revenu cadastral 1142,00 €