Centre de Visé- Maison à rénover 4ch, terrasses et garage

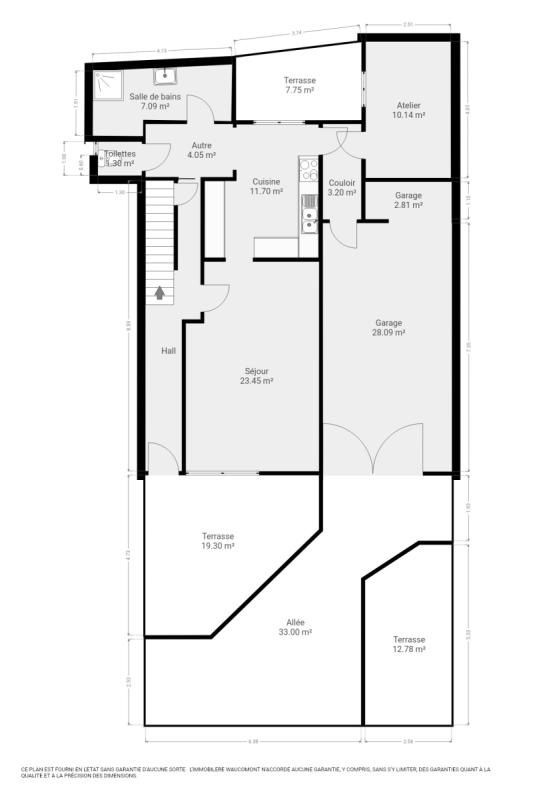
OPTION ! OPTION ! OPTION ! Idéalement située dans le centre de Visé, charmante maison mitoyenne à rénover (+/- 190m² d'après PEB) 3 à 4 chambres avec terrasses et garage, située en retrait de la route. Elle se compose comme suit : Sous-sol : 2 caves. Rez-de-chaussée : hall d'entrée, séjour (+/-23m²), cuisine aménagée (+/- 12m²) (taque vitrocéramique, hotte, évier), salle de douches (douche et lavabo), toilette indépendante, atelier/bureau (+/- 10m²) et un grand garage avec porte manuelle (+/- 28m²). 1er étage: palier, 3 chambre (+/- 11, et 2 de +/- 13m²) et un dressing ou chambre d’enfant (+/- 8m²). 2ème étage : spacieux grenier éventuellement aménageable en 1 chambre (+/- 35m²). A l’extérieur, vous bénéficierez de 2 terrasses (+/- 19 et 12m²) et une cour à l'arrière du bien (+/- 7m²). Châssis simple et double vitrage bois avec volet en partie, chauffage central au mazout. PEB: E, E Spéc: 469 kWh/m².an, E totale: 89.243 kWH/an, n° 20250811011796. R.C. : 731€, Superficie totale (terrain): 323m². Belle situation au coeur de Visé! Occasion à ne pas manquer ! Informations données à titre indicatif et non contractuelles.www.waucomont.be
Classe énergétique Énergie spécifique Énergie totale Émission de CO2 PEB No.
F 469kWh/m².an 89243kWh.an 116kg CO2/an 20250811011796

Informations générales

  • Type de bien Maisons / Propriétés
  • Sous-catégorie Maison
  • Disponibilité À l'acte
  • Etat À rénover
  • Nombre d'étages 0
  • Nombre de façades 2

Informations sur l'extérieur

  • Surface parcellaire 323,00 m²
  • Parking 1
  • Terrasse 1
  • Surface terrasse 1 39 m²

Informations sur l'intérieur

  • Surface habitable 190,00 m²
  • Cuisine Oui
  • Type de cuisine Aménagée
  • Nombre de chambres 4
  • Salle de douche 1
  • Type d'énergie du chauffage Mazout

Informations financières

  • Revenu cadastral 731,00 €