Centre de Visé, maison mit. 3 chambres avec jardin

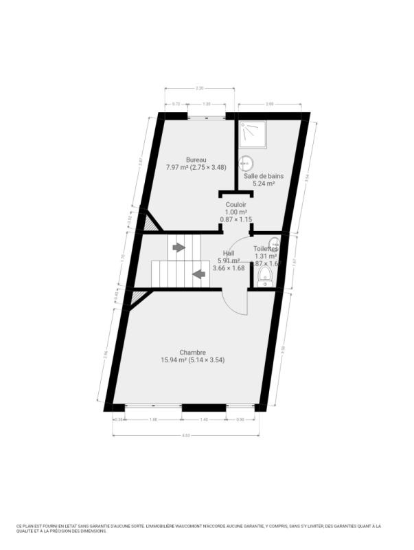
Maison mitoyenne à rafraîchir (+/- 144m² d'après PEB) 3 chambres avec jardin jouissant d'une situation d'exception dans l'hyper centre de Visé, à 2 pas de la place. Elle se compose comme suit: Sous-sol: 2 caves de +/- 13m². Rez-de-chaussée: hall d'entrée, salon (+/- 11m²), séjour (+/- 26m²) avec cuisine équipée ouverte (frigo, four, taque vitrocéramique, hotte, lave-vaisselle, évier) et jardin. 1er étage: palier, 1 chambre (+/- 15m²), salle de douches (douche, lavabo), dressing/bureau (+/- 7m²) et toilette indépendante. 2ème étage: palier, 2 chambres (+/- 14 et 15m²). Châssis double vitrage PVC, chauffage central au gaz. PEB: D, E Spéc: 264 kWh/m².an, E totale: 38.087 kWH/an, n° 20241007020321. R.C.: 528€, superficie totale: +/- 69 m². Informations données à titre indicatif et non contractuelles. Belle situation au coeur de Visé! www.waucomont.be

Classe énergétique Énergie spécifique Énergie totale Émission de CO2 PEB No.
D 264kWh/m².an 38087kWh.an 49kg CO2/an 20241007020321

Informations générales

  • Type de bien Maisons / Propriétés
  • Sous-catégorie Maison
  • Disponibilité À l'acte
  • Etat À rafraîchir
  • Année de construction 1936
  • Nombre d'étages 0
  • Nombre de façades 2

Informations sur l'extérieur

  • Surface parcellaire 69,00 m²

Informations sur l'intérieur

  • Surface habitable 144,00 m²
  • Cuisine Oui
  • Type de cuisine Equipée
  • Nombre de chambres 3
  • Salle de douche 1
  • Type d'énergie du chauffage Gaz

Informations financières

  • Revenu cadastral 528,00 €