Charmante maison 3 façades à rafraichîr à Barchon

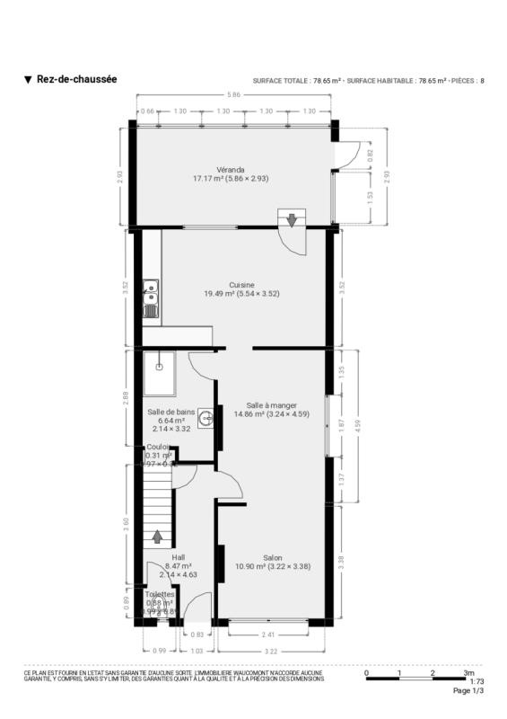
OPTION! OPTION! Idéalement située à Barchon, charmante maison 3 façades à rafraichir (+/- 151 m² d'après PEB) 3 chambres, véranda et une cour. Elle se compose comme suit : Sous-sol : caves. Rez-de-chaussée : hall d'entrée avec toilette indépendante, lumineux séjour (+/- 25m²), cuisine aménagée (+/- 19m²) (hotte, évier), salle de bains (douche, lavabo), véranda (+/- 17m²) et une cour (+/- 14m²). 1er étage : halle de nuit, 3 chambres (+/- 12, 12 et 19m²), débarras/ dressing (+/-5m²) et un bureau (+/- 4m²), combles de rangement. Chauffage central au mazout, châssis double vitrage PVC et bois avec volet manuel en partie. PEB : E, E Spéc: 358 kWh/m².an, E totale : 54.201 kWh/an, n° 20250516005988. R.C. (actuel) : 743€, Superficie totale : 151m². Opportunité à saisir ! A découvrir ! Informations données à titre indicatif et non contractuelles.www.waucomont.be
Classe énergétique Énergie spécifique Énergie totale Émission de CO2 PEB No.
E 358kWh/m².an 54201kWh.an 89kg CO2/an 20250516005988

Informations générales

  • Type de bien Maisons / Propriétés
  • Sous-catégorie Maison
  • Disponibilité À l'acte
  • Etat À rafraîchir
  • Année de construction 1950
  • Nombre d'étages 0
  • Nombre de façades 3

Informations sur l'extérieur

  • Surface parcellaire 132,00 m²
  • Terrasse 1
  • Surface terrasse 1 14 m²

Informations sur l'intérieur

  • Surface habitable 151,00 m²
  • Cuisine Oui
  • Type de cuisine Aménagée
  • Nombre de chambres 3
  • Salle de douche 1
  • Type d'énergie du chauffage Mazout

Informations financières

  • Revenu cadastral 743,00 €