Charmante maison rénovée dans le centre de Blegny

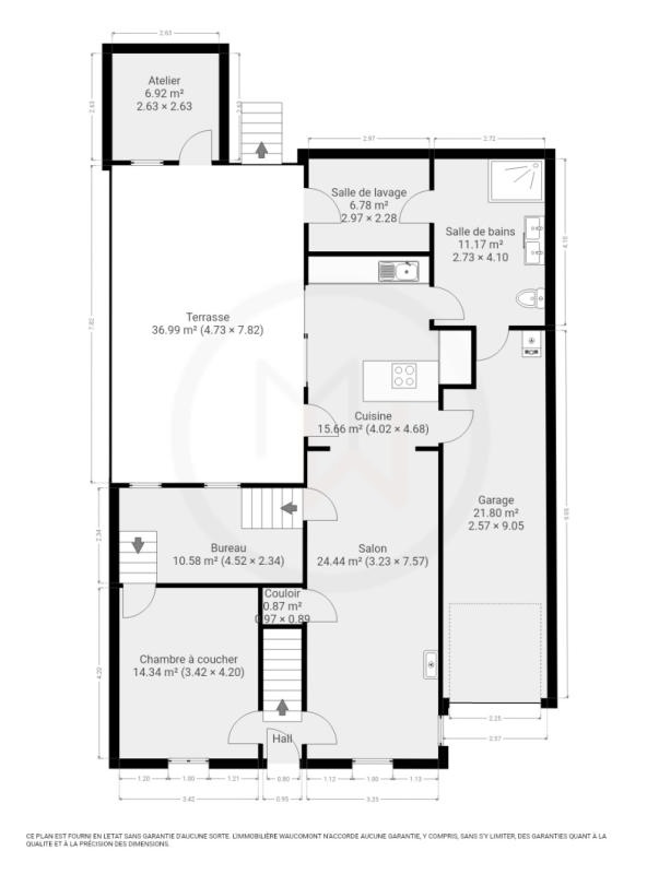
Idéalement située dans le centre de Blegny à proximité de toutes les commodités, charmante maison rénovée (+/- 190m² d'après PEB) 3 chambres (possibilité 4), grande terrasse (+/- 36m²), jardin et un garage. Elle se compose comme suit : Sous-sol : cave. Rez-de-chaussée : lumineux séjour (+/- 24m²) avec un poêle à pellets, cuisine équipée ouverte (+/- 15m²) (taque vitrocéramique, lave-vaisselle, four, frigo, hotte, évier), salle de douches (douche italienne, lavabo double vasque, wc), buanderie (+/- 6m²), 1 chambre (+/- 14m²), bureau/dressing (+/- 10m²) et un garage ( +/- 21m²) avec porte motorisée. 1er étage : hall de nuit, 2 chambres dont 1 chambre d’enfant (+/- 13 et 7m²) et une salle de bains (baignoire, lavabo, wc). 2ème étage : combles actuellement aménagés en une chambre (+/- 13m²) et un grenier de rangement (+/- 17m²). A l’extérieur, vous bénéficierez d’une grande terrasse (+/- 36m²), d’un jardin plat et d’une dépendance/atelier (+/- 6m²). Chauffage central au gaz de ville (nouvelle chaudière 2025), châssis double vitrage PVC avec volets en partie, poêle à pellets. PEB : C, E Spéc: 234 kWh/m².an, E totale : 44.305kWh/an, n° 20251028014975. R.C. : 535€, Superficie totale (terrain): 330m². Occasion à ne pas manquer ! Informations données à titre indicatif et non contractuelles. www.waucomont.be

Classe énergétique Énergie spécifique Énergie totale Émission de CO2 PEB No.
C 234kWh/m².an 44305kWh.an 43kg CO2/an 20251028014975

Informations générales

  • Type de bien Maisons / Propriétés
  • Sous-catégorie Maison
  • Disponibilité Date à convenir
  • Etat Bon
  • Nombre d'étages 0
  • Nombre de façades 2

Informations sur l'extérieur

  • Surface parcellaire 330,00 m²
  • Garage 1
  • Terrasse 1
  • Surface terrasse 1 36 m²

Informations sur l'intérieur

  • Surface habitable 190,00 m²
  • Cuisine Oui
  • Type de cuisine Equipée
  • Nombre de chambres 3
  • Nombre de salle de bain 1
  • Salle de douche 1
  • Type d'énergie du chauffage Gaz

Informations financières

  • Revenu cadastral 535,00 €