Charmante maison rénovée Soumagne

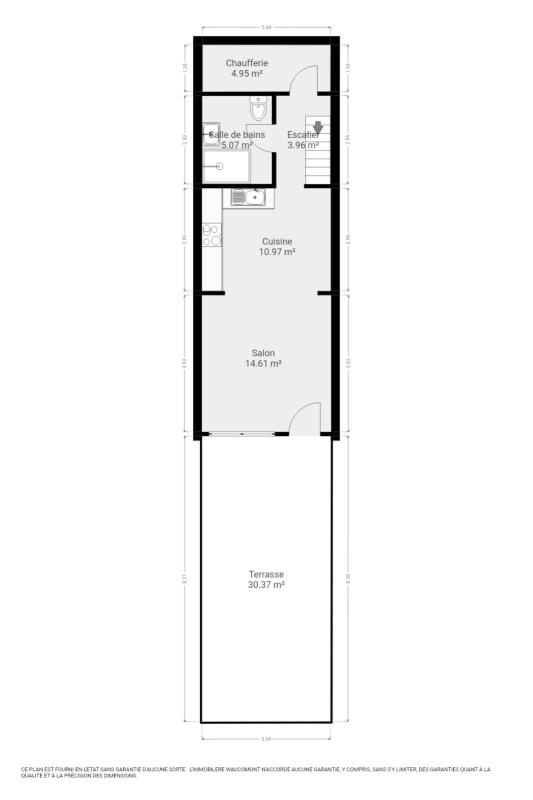
Charmante maison semi-mitoyenne rénovée récemment (+/- 156m² d’après PEB) 1 chambre, terrasse garage et place de parking très bien située dans un endroit calme à Soumagne, à proximité de toutes les commodités. Elle se compose comme suit : Rez-de-chaussée : lumineux séjour (+/- 24m²) avec cuisine ouverte équipée (taque à induction, four/micro-ondes, lave-vaisselle, hotte, évier), salles de douches (douche italienne, lavabo, wc), local chaufferie (+/- 5m²), terrasse bien orientée, un emplacement de parking et un garage non attenant (+/- 20m²). 1er étage : 1 chambre (+/- 13m²), bureau/dressing (+/- 6m²). 2ème étage : grenier de rangement. Chauffage central au mazout, châssis double vitrage PVC avec volets électriques en partie, nouvelle chaudière (2023), nouvelle toiture (2025). PEB : D, E Spéc: 282 kWh/m².an, E totale: 23.192 kWh/an, n° 20250819025788. R.C. : 346€. Superficie totale parcelle : 130m². Opportunité à saisir ! Agréable endroit! Informations données à titre indicatif et non contractuelles. www.waucomont.be

Classe énergétique Énergie spécifique Énergie totale Émission de CO2 PEB No.
D 282kWh/m².an 23192kWh.an 70kg CO2/an 20250819025788

Informations générales

  • Type de bien Maisons / Propriétés
  • Sous-catégorie Maison
  • Disponibilité Date à convenir
  • Etat Très bon
  • Nombre d'étages 0
  • Nombre de façades 3

Informations sur l'extérieur

  • Surface parcellaire 130,00 m²
  • Garage 1
  • Parking 1
  • Terrasse 1
  • Surface terrasse 1 30 m²

Informations sur l'intérieur

  • Surface habitable 82,00 m²
  • Cuisine Oui
  • Type de cuisine Equipée
  • Nombre de chambres 1
  • Salle de douche 1
  • Type d'énergie du chauffage Mazout

Informations financières

  • Revenu cadastral 346,00 €