Cheratte Hauteur- Bungalow 3ch, bureau, double garage et jardin

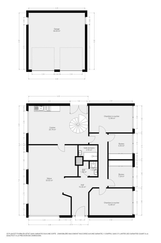
Bungalow à rafraîchir (+/- 173m² d'après PEB) 3 chambres, bureau, double garage et un jardin bien situé dans le centre de Cheratte Hauteur! Il se compose comme suit: Sous-sol: vastes caves (+/- 113m²). Rez-de-chaussée: hall d'entrée, séjour (+/- 33m²), cuisine semi-équipée (frigo, four, taque au gaz, hotte, évier), 1 petite chambre/bureau (+/- 7m²), 3 chambres (+/- 7, 12 et 12m²), salle de douches (douche, lavabo), toilette indépendante, double garage non attenant (+/- 36m²) et jardin orienté Ouest. Châssis simple vitrage bois (en majorité) avec volets en partie et double vitrage PVC, chauffage central au gaz (poêle à pellets dans séjour). PEB : E, Spec: 360 kWh/m2.an, E totale : 62.471 kWh/an, n°20251204024931. R.C. : 1.172€. Superficie totale (terrain) : 714m². Belle situation ! Opportunité à saisir ! Informations données à titre indicatif et non-contractuelle. www.waucomont.be
Classe énergétique Énergie spécifique Énergie totale Émission de CO2 PEB No.
E 360kWh/m².an 62471kWh.an 66kg CO2/an 20251204024931

Informations générales

  • Type de bien Maisons / Propriétés
  • Sous-catégorie Bungalow
  • Disponibilité À l'acte
  • Etat À rafraîchir
  • Année de construction 1976
  • Nombre d'étages 0
  • Nombre de façades 4

Informations sur l'extérieur

  • Surface parcellaire 714,00 m²
  • Garage 2
  • Parking 3

Informations sur l'intérieur

  • Surface habitable 173,00 m²
  • Cuisine Oui
  • Type de cuisine Aménagée
  • Nombre de chambres 3
  • Salle de douche 1
  • Type d'énergie du chauffage Gaz

Informations financières

  • Revenu cadastral 1172,00 €